1. 서 론
2. 설계 요구조건 및 유한요소해석 모델 정립
2.1 기계적이음 요구 조건
2.2 유한요소해석 모델
2.3 유한해석 모델 검증
3. 해석 변수, 결과분석 및 제원 결정
3.1 해석 변수
3.2 해석 결과 및 제원 결정
4. 제안된 철물박스 연결재를 적용한 PC벽체의 구조성능 해석적 평가
4.1 해석 모델
4.2 이론 강도
4.3 해석결과
5. 결 론
1. 서 론
OSC(Off-Site Construction)공법은 공장에서 부재를 제작하고 현장으로 운송하여 조립하는 공법이다. OSC공법은 부재 생산을 공장화함으로써 공기가 단축되고 생산 효율성이 높아 반복적인 모듈의 대량 생산 시 비용이 절감되며 품질 향상을 가능하게 한다(Alazzaz and Whyte, 2014).
OSC공법을 적용하기 위해서는 모듈 혹은 선제작 부재의 이음부가 기존의 철근 콘크리트 공법이 적용된 일체식 구조물과 동등한 수준의 구조성능을 만족하여야 한다. 특히 PC(Pre-Cast) 벽체를 연결하는 경우, 벽체의 접합부에서 구조물의 연속성을 보장하기 위하여 횡저항력이 충분히 확보되어야 한다. PC벽체를 연결하는 대표적인 철근 이음 방식으로는 겹침이음, 용접이음과 기계적이음이 주로 사용된다. 각각의 방식은 장단점이 있으며 적용 상황에 따라 성능과 시공성을 고려한 선택이 필요하다. 여기서, 기계적이음은 두 개의 철근을 슬리브, 커플러와 같은 기계적인 장치로 연결하여 철근 이음하는 방식이다(Kim et al., 2019). 이는 콘크리트의 부착력과 상관없이 인장 저항력을 가지며 높은 수준의 안정성과 내구성을 가져 고강도나 대구경 철근에 적용하기 적합하다(Kim et al., 2005). 구조물에 통상적으로 적용되는 기계적이음은 Fig. 1과 같이 스플라이스 슬리브를 통하여 그라우트를 주입하여 충진 이음하는 습식공법과 철물박스와 같은 연결재의 볼트 체결을 통한 건식공법으로 구분된다(Kim et al., 2019).
스플라이스 슬리브를 통한 방식은 슬리브에 철근을 삽입하고 무수축 모르타르를 주입하여 팽창을 통한 구속력으로 철근을 부착하는 방식이다. Lee와 Chun(2018)은 고강도 충전재를 사용한 커플러형 철근이음 장치를 개발하고 일방향 인장실험을 통한 파괴 하중 및 양상을 분석하였고, Oh와 Moon(2013)은 대구경 철근의 연결장치로 사용될 스플라이스 슬리브에 대하여 구조 해석 및 실험을 실시하여 접합성능을 평가하였다. 하지만 위의 선행 연구들에 의하면, 이 방식은 현장에서 슬리브 내부 충전이 제대로 이루어지지 않을 경우, 접합부의 설계강도가 충분히 확보되지 못하며 특수장비가 필요하고 시공조건이 까다롭다.
철물박스 연결재를 통한 방식은 현장에서 구조체의 철근을 볼트로 조립하여 연결하고 모르타르로 마감하는 방식이다. Kim 등(2019)은 철물박스 연결재의 구조성능과 이를 적용한 PC 벽체의 횡력에 대한 이력 특성을 실험적으로 규명하였다. Lee 등(2020)은 PC 벽체의 연속성 확보를 위하여 스플라이스 슬리브와 철물박스 연결재를 사용한 수평접합부의 횡방향 반복가력 시험 결과와 이론적 내력 등의 비교 및 고찰을 진행하였다. Seo 등(2020)은 철물박스 연결재를 통한 기계적이음 상세와 주름관을 이용한 겹침이음 상세를 통하여 PC 벽체의 내진성능을 실험적으로 평가하였다. 또한 Lee(2021)는 건식 접합에 의한 PC 벽체 구조물이 일체식 구조물과 동등한 성능을 발휘할 수 있는지에 대해 연구하였으며 수평접합부 구조성능에 미치는 인자에 대해 분석하였다. 이 방식은 철근을 볼트 조립하여 연결할 수 있다는 이점에서 노무자의 숙련도 등의 변수가 적으며 연결상태를 육안으로 확인이 가능하여 품질관리가 용의한 장점있다.
기존 철물박스 연결재의 형상은 복수의 소구경 철근을 측면에 용접하여 상부 구조물에 매립한다. 그리고 하부 구조물에 매립된 단일의 대구경 철근을 하부판 슬롯형 구멍에 삽입 후 볼팅하여 구조물을 일체화 한다. 이러한 설계에서 복수의 소구경 철근을 사용하는 이유는 철근의 정착이음길이를 확보함으로써 부착력을 증가시키기 위해서이다. 따라서, 철근의 부착력이 충분히 확보되면 구조물의 안정성이 높아지고 하중 전달이 원활해질 수 있다. 하지만 이 방식은 지반에서 상부 구조물까지의 철근이 일체형으로 연결되지 않아 응력 전달 경로에서 단절이 발생할 가능성이 있다. 이를 극복하기 위하여 국내에서는 Fig. 2와 같은 새로운 형식의 철물박스 연결재가 제안되었다.
신형식 철물박스 연결재는 단일 대구경 철근을 사용하여 하부 구조물과 연결재를 볼팅 방식으로 이음하는 점에서 기존 방식과 유사하다. 그러나 기존 철물박스 연결재가 다수의 소구경 철근을 사용하는 데 반해 신형식 철물박스 연결재는 단일 대구경 철근을 채택하여 상부와 연결재를 일체화한다. 이를 위해 상부 철근은 전조 나사 가공이 된 철근을 사용하며, 용접용 커플러와의 볼팅 후 플래어 용접을 통해 연결재와 결합된다. 이러한 설계는 기존 방식에서 발생할 수 있는 철근 간의 응력 전달 비효율 문제를 개선하며, 용접 절차를 간소화하고 경제성을 높이는 데 기여한다.
본 연구에서는 위에서 설명한 제안된 철물박스 연결재에 대하여 해석적 방법을 통하여 제안 슈의 기초 제원을 결정하는 것을 목표로 한다. 먼저 인장에 대한 변수해석을 통하여 제원을 결정하고 결정된 제원의 철물박스 연결재를 PC 벽체 연결부에 적용하여 구조 성능 만족 여부를 판단하였다.
2. 설계 요구조건 및 유한요소해석 모델 정립
2.1 기계적이음 요구 조건
기계적이음을 적용한 PC벽체가 RC벽체와 동등한 수준의 구조 성능을 만족하기 위해서는 기계적이음부의 성능이 일체형 철근과 비교하여 강도 및 연성을 충분히 확보해야 하고 이음부의 성능 검증이 필수적으로 요구된다.
기계적이음을 적용하기 위해서는 철근 콘크리트용 봉강의 기계적이음 검사방법과 Korean Agency for Technology and Standards(2024)의 기준을 충족해야 한다. Korean Agency for Technology and Standards(2024)에서는 다양한 적용 조건에 따른 기계적이음의 요구조건을 규정하고 있다. 일반 목적 구조물의 경우 일방향 인장시험과 저사이클 반복시험을 만족하여야 한다. 일방향 인장시험은 체결된 연결체의 결합력을 측정하는 평가 항목으로, 판정기준으로는 시험편의 파단강도가 모재 철근 최소 항복점의 125% 이상, 또는 파단강도 이상이어야 한다. 본 연구에서는 이러한 조건을 적용하여 해석 모델의 기게점 이음조건 만족 여부를 1차적으로 판단하였다.
다만, 국내 기준에 따라 실제 제안된 철물박스 연결재를 PC 벽체 연결부에 적용하기 위해서는 저사이클 반복시험을 포함한 인장시험이 반드시 이루어져야 한다. 본 연구에서는 실용화를 위한 성능평가 시험전에 해석적 방법을 통하여 제안된 철물박스 연결재의 기초 제원을 결정하는 것을 목적으로 함으로 Korean Agency for Technology and Standards(2024)의 인장시험 판정기준만 적용하였다.
2.2 유한요소해석 모델
Korean Agency for Technology and Standards(2024)에 나타난 일축인장 시험을 모사하기 위하여 Fig. 3과 같이 유한요소해석 모델을 정립하였다.
유한요소해석 모델은 범용 구조해석 프로그램인 ABAQUS (2016)를 활용하여 일축 인장 해석을 수행하였다. Fig. 3과 같이 제안된 철물박스 연결재를 구성하는 요소들은 모두 8절점 솔리드 요소 (C3D8R)를 사용하여 모델링하였다.
유한요소해석 모델 작성 시 상부판과 상부 철근은 용접으로 연결되므로 일체식으로 가정하였다. 또한, 하부철근과 너트 연결부는 거의 변형이 없어 하부철근과 너트도 일체식으로 가정하였다. 너트, 와셔, 하부판 간의 계면에 slip에 의한 마찰(penalty)과 접촉 면간의 침투되지 않고 하중을 전달(hard)할 수 있도록 접촉 (Contact) 조건을 적용하였다. 접촉조건 부여 시 강재 간 마찰계수는 0.6으로 설정하였다. 해석은 재료 및 기하 비선형을 모두 고려하여 수행하였다. 일축인장 시험을 모사하기 위하여 경계조건은 실험과 유사하게 설정하였다. 하부 철근 옆면의 변위를 구속하고 상부 철근 옆면에 축방향 변위를 하중을 작용시켰다. 제안된 철물박스 연결재 대표 모델 형상의 세부 치수는 Fig. 4와 같다.
볼트 조립 작업성을 확보하기 위해 슈의 내부 치수(140 × 110 × 90mm3)는 고정된 값으로 설정하였으며, 외부 치수를 조정하여 최적의 형상을 도출하였다. 제안된 철물박스 연결재 상하부에 이음 및 결합되는 철근은 기계적이음에 상용되는 대구경 철근인 D32 철근을 적용하여, 철근과 슈를 포함한 총 높이는 600mm로 설정하였다.
상하부판 두께의 경우, 기존 연구(Lee, 2021)을 참고하여 참고 두께를 결정하였다. 검토 결과, D32 철근이 사용된 상하부판 두께는 28mm로 결정하였다. 또한, 옆판의 두께는 8mm를 적용하여 대표 모델을 설정하고 해석을 수행하였다. 하부 철근과 볼팅되는 너트의 크기는 기존연구(Lee, 2021)를 참조하여 철근의 공칭 직경의 약 1배인 30mm를 체결 길이로 확보하여 적용하였다. 또한, 와셔는 폭 65mm, 높이 9mm를 적용하였고, 제안된 철물박스 연결재 하부판의 철근 삽입부 직경은 각 철근의 직경보다 2mm 정도의 추가 여유를 두어 철근 삽입이 용이하게 하였다.
본 연구에서 사용된 강재의 재료 모델은 Fig. 5와 같다. 강재는 항복 응력()에 도달하기 전까지 선형적으로 강도가 증가한다고 가정하였으며, 항복 이후 소성 변형률()은 항복 변형률()의 10배까지 발생하도록 설정하였다. 또한 강재는 선형적인 경화(Hardening) 거동을 가정하였으며, 최대 변형률()이 0.1에 도달할 때 극한 응력()에 이르는 것으로 설정하였다. 철근과 와셔는 SD500 강재를 사용하였으며 제안된 철물박스 연결재의 박스는 강재의 수급성을 고려하여 SS275 또는 SM355를 적용하였다. 여기서, 강재의 물성치는 Table 1과 같이 Korean Agency for Technology and Standards(2021)에서 규정한 값을 사용하였다.
Table 1.
Applied material properties of steel
| Type |
E (MPa) | Poisson’s ratio | (MPa) | (MPa) |
| SD500 | 210,000 | 0.3 | 500 | 650 |
| SS275 | 275 | 410 | ||
| SM355 | 355 | 490 |
2.3 유한해석 모델 검증
앞서 정립한 제안된 철물박스 연결재 일축인장 모델의 해석 결과를 실험 결과와 비교하여 검증하였다. 실험체는 D32 철근과 SS275 강재가 적용되었으며 상하부판의 두께는 각각 32mm, 옆판의 두께는 10mm이다. 해석 결과 나타난 인장 하중-변위 관계는 Fig. 6과 같다.
단, 본 검증모델에서는 실제 철근의 응력-변형률 관계를 모사하기 위하여 기존 실험결과(Ko and Lee, 2021)를 사용하여 SD500 철근의 항복응력과 인장응력을 560MPa과 743MPa로 설정하였다. 해석결과, 항복 시 작용력은 437kN, 파단 시 작용력은 527kN으로 나타났다. 실험의 경우 항복 시 작용력과 파단 시 작용력는 각각 428kN과 538kN으로 나타났으며 오차는 약 2%로 해석 모델이 실험결과 나타난 강도를 잘 예측 할 수 있을 것으로 판단된다.
또한, 해석에서 제안된 철물박스 연결재는 인장력 작용 시 Fig. 7과 같이 하부 철근에서 우선적으로 파단 시 작용력에 도달하며, 상하부판이 면외방향 휨 변형이 발생되었다. 특히, 상부판의 용접부, 하부판의 철근 삽입부, 옆판의 전면 부분에서 응력이 집중되는 경향이 관찰되었다. 이러한 거동 특징은 실험 결과와 유사한 것으로 나타나 본 해석 모델은 제안된 철물박스 연결재의 거동 특성을 잘 반영하고 있음을 확인하였다. 따라서, 유한요소해석이 일축인장 조건을 잘 모사할 수 있는 것으로 판단된다.
3. 해석 변수, 결과분석 및 제원 결정
3.1 해석 변수
신현식 슈의 적정 제원 결정을 위하여 변수해석을 수행하였다. 제원 결정 시 참조되는 기준은 앞서 설명한 바와 같이 Korean Agency for Technology and Standards(2024)의 일방향 인장시험 기준으로 제안된 철물박스 연결재의 파단강도가 모재 철근 최소 항복점의 125% 이상, 또는 파단강도 이상이어야 한다. 여기서 모재 철근의 최소 항복점과 파단 시 작용력은 제안된 철물박스 연결재 해석 모델과 동일한 해석 조건을 갖는 단일 철근의 인장해석 결과를 적용하였다. 해석 결과 단일철근의 항복 시 작용력과 파단 시 작용력은 각각 389kN과 458kN으로 나타났다. 이 밖에 본 해석의 강재 재료모델은 최대 변형률이 0.1인 경우 파단 시 작용력에 도달하도록 하였으므로 인장 해석 모델에서는 최대 소성 주인장 변형률이 0.1을 넘는 경우 과도한 변형이 발생할 수 있으므로 최대 소성 주인장 변형률을 0.1로 제한하였다.
위에서 언급한 두 가지 조건을 만족하는 경우 제안된 철물박스 연결재의 PC 벽체 연결부에 적용이 가능하다고 판단하였으며 앞에서 설명한 대표모델을 기본으로 강재의 재질, 상하부판 및 옆판의 두께를 변화시키면서 제안된 철물박스 연결재의 적정 제원을 해석적으로 결정하였다. 이에 사용된 해석 모델은 Table 2와 같다.
Table 2.
Model properties for parametric study
적용 철근은 D32 철근이다. 강재는 SS275와 SM355 두 가지 이다. 상하부판의 두께는 22mm부터 32mm까지 변화시켰다. 옆판의 경우 두께는 4.5mm~10mm 로 변화시켰다. 두께 결정 시 실제 유통되는 강판의 두께를 고려하여 설정하였다.
3.2 해석 결과 및 제원 결정
해석 결과 나타난 제안된 철물박스 연결재의 인장 하중-변위 관계와 응력 분포를 분석하였다. Fig. 8과 9는 각각 SS275 강재가 적용된 제안된 철물박스 연결재 상하부판 두께에 따른 인장 하중-변위 곡선과 응력 분포를 보여준다.
이 그림에서 알 수 있듯이 상하부판의 두께가 감소하는 경우 항복 시 작용력은 저하되고 파단 시 작용력은 유사하나 파단 시 작용력에 대응하는 변위가 증가함을 알 수 있으며, 철물박스 연결재 부재에서 우선적으로 항복이 발생하고 이에 따른 변형이 증가함에 따라 단일 철근의 하중-변위 곡선과는 상이한 그래프 형태가 도출되었다. 또한, Fig. 9에서 볼 수 있듯이 상하부판의 두께가 감소하면서 상하부판의 휨 지배 파괴거동이 명확하게 나타나고 있음을 알 수 있다. 즉, 상하부판은 인장 하중을 옆판으로 잘 전달하기 위하여 충분한 휨강성과 강도를 확보하여 휨 발생을 줄여야 하는 것으로 나타났다.
Fig. 10과 Fig. 11은 SS275 강재가 적용된 제안된 철물박스 연결재 옆판 두께에 따른 인장 하중-변위 곡선과 응력 분포를 보여준다.
이 그림에서 알 수 있듯이 옆판의 두께 감소에 따라 항복응력 뿐만 아니라 파단 시 작용력도 뚜렷히 감소하는 것을 알 수 있다. 또한, 옆판 두께가 감소함에 따라 전면부에서 인장 지배적인 파괴 거동이 발생하며 단일 철근의 거동과는 상이한 거동이 나타났다. 이러한 결과는 옆판의 두께가 직접적으로 신현식 슈의 파단 시 작용력과 연관되어 있음을 나타낸다. Fig. 11의 응력분포를 보더라도 옆판의 두께가 4.5mm와 6mm인 경우는 옆판 대부분이 항복을 하며 파단 시 작용력이 저하되는 것을 알 수 있다. 이 경우는 옆판의 두께 감소로 D32 철근의 파단 시 작용력 보다 제안된 철물박스 연결재의 파단 시 작용력이 작아지는 경우로 판단된다.
이와 같은 거동은 강판 재질 SM355를 적용한 제안된 철물박스 연결재에서도 유사하게 발생하는 것으로 확인되었다. 상하부판은 철근의 인장력에 의하여 휨거동이 주로 나타나며 적절한 두께를 가져 충분하 휨강성과 강도를 가져야 한다. 또한, 옆판은 제안된 철물박스 연결재의 파단 시 작용력과 직접적으로 관계되며 충분한 두께를 가져야 한다. 해석 결과를 종합하면 다음의 Fig. 12 및 Fig. 13과 같다.
SS275인 경우, 상하부판의 두께를 28mm로 적용했을 때 파단 시 작용력은 단일 철근의 강도와 유사한 값을 나타내었으며, 철근에서 먼저 파단되는 거동을 확인하였다. 그러나, 최대 소성 주인장 변형률이 0.1을 초과하여 상하부판의 두께를 30mm 이상으로 증대시키는 것이 적합하다고 판단된다. 또한, 옆판의 두께는 8mm 이상을 적용하는 것이 바람직한 것으로 나타났다. 재질이 SM355인 경우, 상하부판의 두께를 25mm 이상으로 적용하여야 하는 것으로 나타났다. 옆판의 두께가 6mm일 경우 단일 철근의 강도 이상의 성능을 발휘하였으나, 최대 소성 주인장 변형률이 0.1을 초과하였다. 따라서 옆판의 두께를 8mm 이상으로 설계하는 것이 바람직하다.
최종적으로 SS275와 SM355 강재에 대하여 상하부판의 두께는 각각 30mm와 25mm 이상, 옆판은 모두 8mm 이상의 강재를 사용하여야 단일 동일 철근(D32) 이상의 파단 시 작용력을 확보하고 최대 소성 주인장 변형률이 0.1 미만으로 나타날 수 있음을 알 수 있었다. 이러한 제원은 제안된 철물박스 연결재가 설계 목적에 부합하는 성능을 발휘하는 동시에, 생산 측면에서 경제성을 고려하여 설계되었으며, 생산과 유통을 감안할 때 높은 실용성을 가질 것으로 판단된다.
4. 제안된 철물박스 연결재를 적용한 PC벽체의 구조성능 해석적 평가
4.1 해석 모델
여기서는 앞에서 결정된 제안된 철물박스 연결재의 제원을 PC 벽체 연결부에 적용하여 해석을 수행하였다. 해석 모델 개요는 Fig. 14와 같다. 제안된 철물박스 연결재가 적용된 PC 벽체 해석의 목적은 제안된 철물박스 연결재를 적용한 PC 벽체의 구조성능을 기존 일체식 벽체의 성능과 비교하기 위함이다. 해석 모델은 기존의 유사 연구의 실험체를 참고하여 결정하였다. 적용된 제안된 철물박스 연결재는 SS275강재가 적용된 슈이며 철근은 D32, 상하부판 및 옆판의 두께는 각각 30mm와 8mm이다.
제안된 철물박스 연결재는 4절점 쉘 요소(S4R)를 사용하여 모델링되었으며, 슈에 용접 및 결합되는 철근은 트러스 요소(T3D2)를 사용하였다. 콘크리트는 8절점 연속체 요소를 적용하였으며 제안된 철물박스 연결재와 콘크리트의 계면은 완전 부착으로 가정하였다. 다만, 상부벽체와 하부벽체 사이의 계면에는 접촉조건을 적용하였다. 콘크리트-강재 간 마찰계수는 0.4, 콘크리트-콘크리트 간 마찰계수는 0.6으로 적용하여 해석을 수행하였다.
일반적으로 벽체에는 상재하중이 작용함으로 이를 모사하여 해석을 수행하였다. 적용된 벽체의 상재하중은 벽체의 압축강도 의 10%를 적용하였다. 여기서 는 이며 와 는 각각 콘크리트와 강재의 면적을 나타낸다. 와 는 각각 콘크리트의 압축강도와 철근의 항복응력이다.
콘크리트의 압축 거동은 European Committee for Standardization (2004)에서 제시한 모델을 사용하였으며,
식 (1)과 같이 나타낼 수 있다. 콘크리트의 압축 강도는()는 최대 압축 응력()과 변형률의 관계식으로 정의된 상수, 𝜂와 에 의한 관계식으로 계산된다. 적용된 콘크리트의 응력 변형률 곡선은 Fig. 15와 같다.
본 연구에서는 최대 압축 응력()의 40%까지 선형 탄성 거동으로 가정하였다. 최대 압축 변형률은 0.0035로 설정하였다. 은 45MPa로 설정하였고, 이를 바탕으로 European Committee for Standardization(2004)의 관계식을 적용하여 최대 인장 응력은 3.8MPa로 산출되었다. 콘크리트의 인장 거동은 최대 인장 응력에 도달한 후, 최대 인장변형률 0.002까지 선형적으로 감소하는 모델을 적용하였다. 콘크리트의 탄성계수는 32,858 MPa이며, 포아송비는 0.2를 적용하였다.
최종적으로 앞서 설명한 바와 같이 압축강도의 10%에 해당하는 압축력을 작용시키고 횡방향으로 해석모델 상부에 변위하중을 작용시켜 해석을 수행하였다. 해석모델 하부는 고정지점으로 가정하였으며 기하 및 재료 비선형을 모두 고려하였다.
4.2 이론 강도
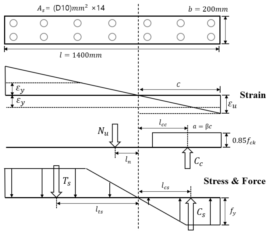
여기서는 제안된 철물박스 연결재를 적용한 일체형 벽체의 이론 강도를 산정하였으며 그 값을 해석 결과와 비교하고자 한다. 일체형 벽체의 이론강도는 Ministry of Land, Infrastructure and Transport(2021)를 참고하여 계산할 수 있다. 이 방법은 변형률 적합 단면 해석 방법(strain compatibility method)에 기반을 두고 있다. Fig. 16은 연속 벽체의 강도를 산정하기 위한 변형률과 응력분포를 나타낸다.
Fig. 16에서 RC벽체의 중립축 위치는 힘의 평형 조건에 따라
식 (2)와 같다.
식 (2)에서 는 휨에 의하여 콘크리트에 작용하는 압축력 , 휨에 의하여 압축철근에 작용하는 압축력, 는 휨에 의하여 철근에 작용하는 인장력, 는 상재하중에 의하여 발생되는 압축력이다. 이때 휨강도는
식 (3)과 같이 계산할 수 있다. 본 해석 모델에 대하여 연속 벽체인 경우 휨 강도는 956kN・m로 계산되었으며 이를 작용하는 횡하중으로 환산하면 516kN이다.
4.3 해석결과
여기서는 해석결과와 연속 벽체의 이론강도 비교 및 해석결과 나타난 응력분포 분석을 통하여 제안된 철물박스 연결재가 적용된 PC 벽체의 구조 특성을 파악하고자 한다.
해석 결과, PC벽체의 거동에 따른 횡방향 하중-변위 관계는 Fig. 17과 같다. Fig. 17에서 알 수 있듯이 극한 강도는 약 575 kN으로 나타났으며 이는 앞서 산정한 일체형 벽체의 공칭강도 516kN보다 약 11% 큰 것으로 나타나 본 연구에서 제안된 철물박스 연결재의 성능을 간접적으로 검증할 수 있다.
벽체의 극한 강도 575kN에 도달 시 응력 분포를 Fig. 18과 같다. 이 그림에서 확인할 수 있듯이, 최외곽 콘크리트 압축부는 압축응력이 45MPa을 초과하여 파괴되는 것으로 나타났으며, 콘크리트의 압축 지배 파괴 거동을 보이는 것을 확인할 수 있었다. 또한, 제안된 철물박스 연결재의 인장부 철근과 내부 철근은 모두 항복응력 500MPa에 도달하였다. 제안된 철물박스 연결재의 인장부 철근은 상판 용접부에서 항복응력에 도달하였으며, 내부 철근은 상・하부 벽체 간 계면부에 인접한 위치에서 항복 응력에 도달한 것으로 나타났다. 이와 더불어 인장부에 의치한 철물박스 연결재를 둘러싼 콘크리트에서는 최대 인장 변형률을 초과하는 상당한 인장 손상이 발생하는 것을 확인할 수 있었다. 이는 제안된 철물박스 연결재의 강성이 콘크리트보다 상당히 크기 때문으로 판단된다.
5. 결 론
본 연구에서는 제안된 철물박스 연결재의 적정 제원을 결정하기 위한 해석적 연구를 수행하였다. 또한, 결정된 제원의 철물박스 연결재를 PC 벽체에 적용하여 PC 벽체의 구조성능을 해석적으로 평가하였다. 연구 결과는 다음과 같다.
1)제안된 철물박스 연결재의 적정 제원 결정을 위하여 대표모델을 선정하고 적용재료, 상하부판 및 옆판 두께를 변수로 하여 해석을 수행하였다. 그 결과 상하부판은 부착 철근의 인장에 의하여 발생하는 휨에 충분히 저항할 수 있는 강성과 강도를 가져야 하고 옆판의 두께는 철근의 파단 시 작용력 보다 제안된 철물박스 연결재의 파단 시 작용력이 크도록 충분한 두께를 가져야 하는 것으로 나타났다.
2)D32 철근에 대하여 SS275와 SM355 강재로 이루어진 제안된 철물박스 연결재에 대하여 상하부판은 각각 최소 30mm와 25mm 이상의 두께를 가져야 하는 것으로 나타났다. 옆판의 경우 최소 8mm 이상의 두께가 필요한 것으로 나타났다.
3)변수해석으로 선정된 제안된 철물박스 연결재의 제원을 적용하여 PC 벽체를 구성하고 해석적으로 극한 강도를 검토하였다. 그 결과 제안된 철물박스 연결재를 적용한 PC 벽체의 극한강도가 동일 제원의 일체형 벽체와 동등 이상의 극한강도를 가지고 있음을 확인하였다. 다만, 극한 상태에서 인장부에 설치된 제안된 철물박스 연결재의 주변 콘크리트에 상당한 인장 손상이 발생하는 것을 확인할 수 있었다. 이러한 손상이 실제로 발생하는지 여부는 실험을 통하여 확인이 필요하며, 필요 시 인장부에 위치한 철물박스 연결재의 주변 콘리트의 인장 손상을 최소화 할 수 있는 상세가 필요할 것으로 판단된다.




















