1. 서 론
1.1 배경 및 MCF(multi-pile concrete foundation)의 필요성
석유자원 고갈문제가 논의되면서 풍력발전, 태양열발전과 같은 신재생 에너지의 개발이 본격적으로 논의되었다. 신재생 에너지중 하나인 풍력발전은 무제한의 에너지를 얻을 수 있으면서 환경오염의 우려가 적다는 장점이 있으며 특히 우리나라 서해안 지방은 풍부한 풍량을 가지므로 풍력발전 최적지로 꼽힌다. 해상풍력발전은 육상풍력발전에 비해 낮은 토지구입비용, 소음민원으로부터 자유로운 장점이 있다. 장소가 육상에서 해상으로 옮겨가는 동시에 1기의 발전용량이 점점 증가하고 있으며 최근에는 5MW급의 초대형 풍력발전으로 추세가 옮겨지고 있다.
대형화된 풍력발전을 위한 다양한 지지구조 형식이 연구, 제안되었다(Fig. 1). 지지구조는 해상풍력 공사비의 30%를 차지하는 부품으로서 구조물의 안정성과 경제성을 결정하는 중요한 구조물이다. 하지만 이러한 특징에도 불구하고 효율적인 설계, 시공사례는 적은 실정이다. 기존의 중력식 지지구조는 제작 및 설치가 용이하나 자중이 과다하여 설치되는 지반에 영향을 크게 받는다. 콘크리트보다 경량인 강재를 사용한 자켓식, 트라이포드, 모노파일 방식은 기존의 중소형 풍력발전에 주로 사용되었다. 하지만 풍력발전이 대형화됨에 따라 강재 사용량이 크게 증가하였고 구조물을 용접하여 부재를 연결하는 구조물의 특성으로 인해 용접부의 피로성능에 문제가 발생하였다. 또한 최근 강재 원가는 꾸준히 증가하는 추세에 있으며 이로 인하여 강재 구조물의 경제성이 떨어지고 있다. 강재는 구조성능을 확보하기 위해서는 피로 및 부식에 대하여 유지보수를 수행 해야 하나 이는 구조물의 유지보수비용을 상승시키는 원인이 되고 있다. 따라서 사용성 및 경제성을 고려한 새로운 구조 형식의 필요성이 제기되었다.
이러한 문제점을 개선하기 위하여 Fig. 2(Jongkman, 2009)에 나타난 다중 파일기초 콘크리트 지지구조(Multi- pile Concrete Foundation, MCF)가 제안되었다. MCF는 강합성 구조로 지지파일과 말뚝과 기초가 연결되는 슬리브, 콘 모양의 콘크리트 본체, 강기둥과 접합되는 접합부로 이루어져 있다. MCF는 기존의 지지구조에서 발생한 문제점을 반영하여 경제성과 구조성능을 개선하기 위하여 제안되었다. 기존의 구조형식과 비교하였을때 강재 사용량과 용접 필요부분이 작으므로 피로성능, 안정성에서 유리하다. 또한 MCF 구조물은 콘크리트가 주가되는 강합성 구조물로 이는 강재소모량 감소, 콘크리트의 높은 부식에 대한 저항성, 높은 피로저항능력, 뛰어난 내구성, 유지보수비용 절감이라는 장점을 가진다. MCF는 위에 설명한 특징들을 통해 구조성능 뿐만 아니라 경제성 또한 확보하는 것을 목표로 하고 있으며 이를 위한 다양한 연구와 실험이 진행 중에 있다.
1.2 물을 고려한 동적해석
구조물의 설계 시 지진은 반드시 고려되어야 하는 항목이다. 인류의 역사가 시작된 이후로 지진에 의해 많은 인적, 물적 피해를 입었다. 지진과 같은 구조물의 동적 거동의 해석과 설계를 위하여 구조동역학이 구조설계에 접목되었으며 현재는 구조물의 설계 시 내진설계를 법으로 의무화 하였다. 풍력발전 또한 구조물의 예상되는 수명동안 목표성능을 만족하기 위해 서는 구조물의 수명 내에 발생하리라 예상되는 지진 수준에 대한 내진설계가 고려되어야 한다.
본 연구의 대상인 해상풍력발전 구조물과 같이 구조물의 일부가 물에 잠긴 경우 주위의 물이 구조물의 동적거동에 영향을 주며 설계, 해석 시 이를 고려해야 한다. 그러나 해석적인 방법과 실험적인 방법 모두 시간과 비용이 많이 필요하며 이러한 문제를 해결하기 위한 다양한 방법이 제안되었다. Hartnett (1997)은 해상에 위치한 플랫폼의 고유진동수를 구하기 위하여 부가질량법(added mass method)을 적용하여 물의 영향을 간략화한 후 고유진동수를 구하였다. Kim 등(2012; 2013)은 물의 영향을 시간영역에서 모리슨 식을 이용하여 구조물의 속도와 가속도에 종속되는 스프링으로 모델링하였다. Lee 등(2012)은 구조물의 운동에 따른 물의 동수압을 진동수 영역에서 유도, 계산하여 Reyleight-Ritz 방법을 이용한 구조물의 동적 방정식에 대입하여 물의 영향을 고려하였다.
그러나 Added Mass Method는 구조물의 동적 정보, 구조물이 공기 중에서 진동할 때의 고유진동수와 수중에서 진동할 때의 고유진동수를 알아야 적용이 가능하며 모리슨 식을 이용한 물의 모델링은 구조물에 작용하는 동수압을 구조물의 시간에 따른 속도와 가속도에 종속되는 함수이므로 구조물의 속도와 가속도를 알고 있어야 하므로 계산이 복잡해진다. 또한 모리슨 식으로 물의 영향을 고려할 시에는 구조물의 고유 진동수 변화를 고려하지 않는다. 따라서 물의 영향이 크게 작용하는 경우 적용이 어렵다. 물의 영향을 계산하기 위하여 본 연구에서는 Yang(2013)이 제안한 Added Mass 제안식을 사용하여 물의 영향을 고려하였다.
구조물의 설계 시 구조물이 지진 시 요구하는 최소 성능을 만족하도록 설계해야 한다. 이러한 목표를 달성하는 방법, 최소요구사항 등을 기술한 것이 설계기준이다. 국내에 위치한 교량, 건축물과 같은 사회기반시설은 설계기준에 내진설계를 의무화하였다. 최근 증가추세에 있는 국내 지진횟수를 고려 한다면 목표 수명동안의 성능을 만족하기 위해서는 내진에 대한 고려가 반드시 필요하다. 그러나 교량, 항만, 건축물과 같은 여타 구조물과는 달리 현재 해상에 위치한 해상풍력타워 지지구조를 위한 명확한 설계기준은 존재하지 않으며 이로 인해 풍력발전기의 내진성능 평가에 어려움이 있다. 본 연구 에서는 국내의 도로교 설계기준(2012), 항만 및 어항 설계 기준(2005), DNV OS(Det Norske Veritas Offshore Standard; 2012)와 기존의 풍력발전 모델을 참조하여 5MW급 다중 파일기초 콘크리트 풍력발전 지지구조(MCF)의 내진해석을 수행하였다.
1.3 연구범위 및 목적
본 연구에서는 5MW 풍력발전기를 위한 다중 파일기초 원추형 콘크리트 지지구조(MCF)의 내진해석을 수행하였다. 본 연구는 새로운 부가질량법(added mass method)을 사용 하여 물의 영향의 정도를 평가하고, 여러 설계기준에서 제시된 지진에 대해서 MCF 원추형 콘크리트 기초의 내진 안정성의 평가하기 위한 해석을 수행하였다.
물속에 위치한 구조물은 물의 영향으로 인하여 고유진동수가 감소하게 된다(Yang 등, 2013). 내진해석에서 주로 사용되는 응답스펙트럼 방법과 모드중첩법은 구조물의 고유진동수를 바탕으로 해석이 이루어지며 유체-구조물의 상호작용으로 인한 고유진동수의 변화는 구조물의 정확한 해석을 위하여 고려 되어야 한다. 그러나 이를 실험적으로 구하는 것은 시간과 비용이 많이 필요하므로 설계단계에서 적용하기 어렵고 컴퓨터 시뮬레이션을 통한 유체-구조물의 상호작용(fluid-structure interaction)을 고려하는 것은 현대 컴퓨터로도 많은 시간과 노력, 비용을 필요로 한다. 이러한 어려움을 피하기 위하여 여러 연구자로부터 다양한 간략 해법이 제안되었으며 본 연구에서는 간략해법인 Added Mass Method를 사용하기 쉽도록 Yang 등(2013)에 의해 제시된 간략식을 사용하여 물의 영향을 고려하였다.
동적 해석 방법은 각 설계기준에서 권장하는 응답스펙트럼 (response spectrum analysis) 방법과 시간이력해석 (time-history analysis)을 사용하였다. 사용된 설계기준은 도로교 설계기준(korea bridge design codes, KBDC), 항만 및 설계기준(korea port and marina design codes, KPMDC) 그리고 DNV OS를 사용하였다. 또한 시간 이력 효과를 확인하기 위하여 El-Centro(1940, 270 Deg.) 지진을 국내 지진규모에 맞게 최대가속도를 조정한 후 가진 하여 시간이력해석(time-history analysis)을 수행하였다. 구조해석은 상용 구조해석 프로그램인 MIDAS/Civil 2012를 사용하였다. 작용하중은 자중(self weight+turbine weight) 만을 고려하였고 지반은 안정하다고 가정하였다.
2. 구조해석 조건
2.1 가정사항
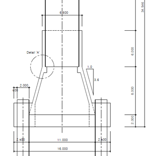
콘크리트 기초의 바닥면으로 부터 높이 10m까지는 콘크리트 만으로 구성되며 콘크리트 기초의 바닥을 기준으로 높이 10m 에서 16m까지는 콘크리트와 콘크리트 내부에 위치한 Steel Shaft가 일체로 거동하는 합성단면으로 고려하였다. Fig. 3에 풍력타워의 콘크리트 기초부의 형상과 치수를 나타내었다. 구조물 상부에 거치되는 블레이드, Generator Shaft, Turbine 은 집중질량 350ton으로 가정하였다. 본 연구에서는 물의 영향을 확인하기 위하여 두 가지의 모델 형식을 사용하였다. 하나는 물의 영향을 고려하기 위하여 Added Mass Method를 적용하여 물의 영향을 고려한 모델, 또 하나는 대조군인 물의 영향을 고려하지 않은 모델 두 가지의 모델을 제작하였다. 수면의 높이는 구조물의 입지조건에서 예상되는 평균 해수면 높이를 사용하였으며 콘크리트 기초의 바닥으로부터 18m 위에 자유수면이 놓인다고 결정하여 모델링하였다.
Beam Model은 다음 장에 설명된 단면 정보를 활용하여 요소길이 1m, Beam Element를 이용하여 모델링하였다. 구조물의 경계조건은 기초의 바닥에서 모든 자유도를 구속 하였다. 감쇠는 모드감쇠 0.05를 가정하였다. 동일한 물성치, 하중조건에 대하여 물의 영향을 고려한 모델과 물의 영향을 무시한 모델의 두 가지의 경우로 나누어 해석을 수행하였다. 작용하는 하중은 자중과 지진력만이 작용하는 것으로 가정 하였다. 자중과 지진하중은 하중계수가 곱해지지 않은 값을 사용하였다.
2.2 형상모델링
구조물에 사용된 재료는 콘크리트와 강재를 사용하였다. 콘크리트의 물성치는 Table 1과 같다. 사용 강재의 물성치는 Table 2와 같다.
Table 2
Steel property
| Steel species | SM490 |
| Modulus of elasticity | 210GPa |
| Poisson’s ratio | 0.3 |
| Density | 8,500kg/m3 |
본 해석에서 사용한 콘크리트 지지기초와 강기둥(steel shaft) 연결부는 Fig. 3에 나타나 있고 이를 바탕으로 모델링을 하였다. 모델의 전체적인 형상과 구성 요소의 명칭을 Fig. 4에 나타내었다. 강기둥(steel shaft)은 높이에 따라 단면의 치수가 변하는 변단면이며 강기둥 바닥으로부터 높이에 따른 강기둥의 치수변화를 Table 3에 나타내었다.
Table 3
Steel shaft diameter and thickness variation
2.3 물이 구조물에 미치는 영향
물속에 위치한 구조물은 물의 영향으로 인하여 고유진동수가 감소하게 된다. 내진해석은 구조물의 고유진동수를 바탕으로 해석이 이루어지며 따라서 유체-구조물의 상호작용으로 인한 고유진동수의 변화는 구조물의 정확한 해석을 위하여 고려 되어야 한다. 그러나 유체-구조물의 상호작용(fluid-structure interaction)을 고려하는 것은 현대 컴퓨터로도 많은 시간과 노력, 비용을 필요로 한다. 이러한 비용을 피하기 위하여 여러 연구자로부터 다양한 간략 해법이 제안되었으며 본 연구 에서는 간략해법인 Added Mass Method를 사용하여 물의 영향을 고려하였다.
Added Mass Method는 동일한 구조물이 수면아래 잠겨 있을 때 고유진동수(ωw)와 공기 중에 존재할 때의 고유 진동수(ωa)의 비(decω)를 알고 있다면 주변의 유체를 모델링 할 필요없이 구조물에 질량을 추가하여 유체에 의한 고유진동수 감소 효과를 모사하는 방법이다. Yang 등(2013)은 방법은 기존에 사용하던 Added Mass Method를 적용이 간편하도록 개선하였으며 Beam Element에 작용하는 구조물의 질량, 수심 두 가지 정보만으로 추가되는 질량을 간편하게 계산할 수 있도록 하였다.
Added Mass Method에서 물속에서 구조물이 진동할 때와 공기 중에서 구조물이 진동할 때의 고유진동수의 비 (decω)는 식 (1)을 통해 계산되고 추가되는 질량 (∆m)은 식 (2)를 통해 계산된다.
여기서, ωa: 구조물이 공기 중에 있을 때의 진동수
ωw: 구조물이 물 속에 있을 때의 진동수
m: 구조물의 질량
∆m: 유체에 잠긴 구조물의 고유진동수를 모사하기 위한 추가된 질량(added-mass)
위의 식을 이용하려면 공기 중에 위치한 구조물의 고유 진동수 ωa, 물속에 위치한 구조물의 고유진동수 ωw를 알고 있어야 한다. 그러나 해석적으로 물속의 고유진동수를 구하는 것은 위에서 설명한 바와 같이 어려운 문제이다. 이러한 문제를 해결하기 위하여 Yang 등(2013)은 ANSYS를 이용하여 변수연구를 실행하였고, 이 결과를 바탕으로 회귀분석을 수행 하여 추가되는 질량(added-mass)을 구하기 위한 간단식인 식 (3)과 (4)를 제시하였다.
여기서, ∆mcir : 단위길이 당 추가질량(원형 기둥에 한함)
ρcon : 콘크리트의 밀도
ρcir(H,D) : Added-mass ratio function
H : 수심(m)
D : 물에 잠긴 원형 기둥의 지름(m)
본 연구에서는 위의 식을 통하여 추가되는 질량을 구하였으며 물의 영향을 고려한 모델에 추가되는 질량을 재하하여 물에 의한 고유진동수 변화를 고려하였다.
2.4 고유치해석
본 연구에서는 응답스펙트럼과 시간이력해석을 수행하기 위해 먼저 고유치 해석(eigenvalue)을 수행하였다. 구조물의 감쇠가 작다면 감쇠를 고려한 고유진동수와 감쇠를 고려하지 않은 고유진동수의 차이는 매우 작다. 구조물의 감쇠비가 0.05로 작으므로 비감쇠 시스템으로 고려하였고 비감쇠 자유 진동하에서의 모드형상(mode shape), 고유 주기(Natural period)를 구하기 위한 특성방정식은 식 (5)와 같다.
여기서, [K] : 구조물의 강성행렬
[M] : 구조물의 질량행렬
: n번째 모드의 고유치
øn: n번째 모드의 고유형상
Table 4
Eigenvalue analysis results for MCF without water
Table 5
Eigenvalue analysis results for MCF with water
Beam Model을 사용하여 물의 영향을 고려한 모델과 물의 영향을 무시한 모델에 대해여 고유치 해석을 통하여 얻어진 구조물의 자유진동 시 고유진동수를 Table 4와 Table 5에 나타내었다.
3. 응답스펙트럼 해석
3.1 응답스펙트럼 개요
응답스펙트럼(response spectrum)은 다자유도시스템을 단일자유도 시스템의 복합체로 가정하여 미리 수치적분을 통하여 계산된 임의 주기 영역내의 최대응답을 조합하여 해석하는 방법으로 설계스펙트럼을 이용한 내진설계에 주로 활용되는 방법이다. 임의 모드에서 최대 응답치를 각 모드별로 구한 다음 조합하여 최대응답을 계산하며 임의 모드의 임의 자유도에 대한 변위와 관성력은 식 (6), 식 (7)을 통하여 계산된다.
여기서, Γm : m차 모드에서의 모드기여계수
øxm : m차 모드에서 x 방향 위치
Sdm : m차 주기에서의 Normalized Spectral Displacement
Sam : m차 주기에서의 Normalized Spectral Acceleration
Mx : 임의 x 위치에서의 질량
구조물의 응답은 각 모드별 응답치를 조합하여 얻어지며 조합하는 방법으로는 식 (8), SRSS(square root of the sum of the squares) 방법을 사용하였다.
여기서, Rmax : 최대응답치
Ri : 임의 i차 모드에서의 최대응답치
3.2 설계 기준별 설계 응답스펙트럼
설계기준에서 응답스펙트럼 방법을 적용하는 단계는 다음과 같다.
Step 1. 구조물의 중요도에 따라 내진등급을 결정한다.
Step 2. 지진 시 구조물의 성능목표를 결정한다.
Step 3. 구조물이 위치한 지역의 지진구역과 지진구역에 따른 지진가속도 값을 결정한다.
Step 4. 지진의 재현주기를 결정하고 지진의 재현주기에 따른 계수를 결정한다.
Step 5. 구조물이 위치한 지반상태를 확인하고 지반종류를 결정한다.
Step 6. 각 계수에 따른 설계지진가속도 곡선을 작성한다.
Table 6
Design code comparison
설계기준 비교 결과 항만 및 어항 설계기준(KPMDC)의 설계응답스펙트럼의 최대가속도값이 도로교 설계기준(KBDC) 에 비하여 매우 크게 계산되었으며 특히 주기 1sec 이하 단주기 영역에서 항만 및 어항 설계기준의 가속도값은 두 배 가까운 차이가 발생하였다(Table 6, Fig. 5).
그러나 지진하중을 비교해 보면(Table 7), DNV OS가 스펙트럼 가속도는 작지만 세 방향을 모두 가진하는 반면, 항만 및 어항 설계기준과 도로교 설계기준(도로교 설계기준 8.4.4) 조합 참조의 경우 하나의 하중조합에 두 방향만을 가진한다.
3.3 응답스펙트럼 해석 결과
물을 고려한 Beam model, 물을 고려하지 않은 Beam model, 2개의 모델을 만들어 위에 기술한 내용으로 모델을 만든 후 결과를 비교하였다(Tables 8, 9, Fig. 6). Beam 모델에서 물을 고려한 모델과 물을 고려하지 않은 모델을 비교해 보면 물을 고려한 모델에서 응력값이 크게 발생하나 물을 고려하지 않은 모델 기준, 1.1%의 차이로 의미있는 격차를 보이지는 않았다. 변위는 물을 고려한 모델과 고려하지 않은 모델이 동일한 값을 보였다. 두 값의 차이가 크지 않은 이유로는 전체 형상 중에서 물에 잠겨있는 부분이 많지 않은 점, 터빈의 질량이 매우 커서(전 구조물에서 터빈이 차지하는 질량비 51%) 터빈질량에 의한 효과가 지배적으로 작용했기 때문으로 예상된다.
지진하중과 자중에 의한 콘크리트 기초부의 응력의 변화는 최대 12.03MPa로 콘크리트 압축응력 대비 30%로 나타났다. 최대 발생 변위는 240mm로 도로교 설계기준 2.5.2.6에서 제시하는 최대변위 기준(캔틸레버 구조물, L/300) 280mm 이내로 발생하는 것으로 나타났다.
Table 8
Responses of MCF without water using response spectrum method
| Design codes | KPMDC | KBDC | DNV OS | |
|---|---|---|---|---|
| Stress(Mpa) | Magnitude | 12.03 | 10.74 | 7.15 |
| Location | Composite section | |||
| Displacement (mm), DX | Magnitude | 240 | 230 | 165 |
| Location | Tower-head | |||
4. 시간이력 해석(time-history analysis)
4.1 시간이력해석 개요
동적하중에 대한 구조물의 평형방정식은 식 (9)와 같다.
여기서, [M] : 질량행렬
[C] : 감쇠행렬
[K] : 강성행렬
gg(t) : 지반가속도
u(t) : 상대변위, : 상대속도, : 상대가속도
시간이력해석은 구조물의 최대변위, 최대가속도만을 구하는 응답스펙트럼과는 달리, 구조물의 동적특성과 가진되는 하중을 이용하여 임의의 시간에 대한 구조물의 거동을 구하게 된다. 본 연구에서는 모드중첩법을 이용하여 시간이력해석을 수행 하였다.
모드중첩법은 모드의 독립성을 나타내는 직교성(orthogonality)을 이용한 방법이다. 모드중첩법은 구조물의 변위를 서로 직교성을 가지는 변위형상의 선형조합 형태로 나타내며 식 (10)과 같이 나타난다.
여기서,
α, β : Reyleigh 계수
ξi : i번째 모드의 감쇠비
ωi : i번째 모드의 고유진동수
øi : i번째 모드의 모드형상
qi(t) : i번째 모드에 대한 단자유도 방정식의해
4.2 가진 지진파
외국의 지진사례 중 가장 자주 사용되는 El-centro, 1940 지진을 국내의 최대지진가속도에 맞추어 최대가속도를 조정하여 사용하였다. 도로교 설계기준, 항만 및 어항 설계기준에서 제시하고 있는 500년 주기 지진의 최대 지진가속도는 0.11g로 제시하고 있으며 El-centro 지진을 최대가속도값 0.11g로 크기를 조정하여 사용하였다. Scaling한 지진 가속도 이력 데이터를 Fig. 7에 표시하였다.
지진하중 가진방법은 AASHTO을 참조하여 다음과 같이 결정하였다
Load case : 1.0X+0.3Y
4.3 시간이력해석 결과
Time History analysis에서 시간에 따른 타워 상단의 변위를 Fig. 8에 표시하였다. 시간에 따른 변위의 분석 결과 물의 유무에 따른 차이는 나타나지 않았다. 시간이력해석의 결과는 물을 고려한 모델에서 9.20MPa의 최대응력이 발생 하였고 물을 고려하지 않은 모델에서 압축 8.98MPa의 최대 응력이 발생하였다(Table 10, Fig. 9). 최대응력이 발생 하는 지점은 콘크리트와 강기둥이 일체로 거동하는 Composite Section 하단에서 발생하였다. 물에 의해 응력이 감소된 응답스펙트럼해석과는 달리 시간이력해석에서는 응력크기가 증가하였다. 그러나 물을 고려한 모델과 고려하지 않은 모델의 응력 차이는 물을 고려하지 않은 모델 기준 2.4%로 큰 차이는 나타나지 않았다. 해석 방법에 따른 결과 차이가 발생한 이유는 Fig. 5와 같이 고려된 세 가지의 설계스펙트럼의 최대 가속도와 대응되는 주기의 구간이 차이가 남에 따라 구조물에 작용하는 지진력의 차이 때문이다.
지진하중과 자중 하중조합 하에서 발생하는 응력의 크기는 콘크리트 압축응력 대비 22.5%이며 변위는 86.79mm로 도로교 설계기준 2.5.2.6에서 제시하는 최대변위 기준 280 mm을 (L/300)을 만족하였다.
힘의 크기만을 고려하는 응답스펙트럼 방법과는 달리 시간이력해석은 힘의 크기와 방향을 모두 고려할 수 있다. 시간이력해석 결과 해석 시간동안 압축이 지배적으로 나타났 으며 인장영역은 나타나지 않았다.
5. 요약 및 결론
본 연구에서는 5MW급 풍력터빈의 콘크리트기초에 대하여 내진해석을 수행하였다. 물에 의해 고유진동수가 교란되는 영향을 확인하기 위해 물을 고려한 모델, 물을 고려하지 않은 모델, 두 개의 모델을 작성하여 결과를 비교, 검토하였다. 물의 영향은 Added Mass Method를 사용하였으며 추가질량의 계산은 Yang 등(2013)이 제안한 간략식을 사용하여 결정 하였다. 각각의 모델에 대하여 국내에 존재하는 설계기준, 도로교 설계기준, 항만 및 어항 설계기준, DNV OS 설계기준 들의 내용을 근거로 응답스펙트럼 방법을 사용하여 지진 시 발생하는 변위와 응력을 계산하였고 추가로 El-centro 지진파를 국내 실정에 맞게 크기를 조정 후 모델에 재하하여 해석을 수행하였다.
물에 의한 고유진동수의 변화가 지진하중에 의한 영향을 경감 또는 증가시키는 것으로 나타났으나 해석한 모델에서 그 차이는 크지 않은 것으로 나타났다. 물에 영향을 고려한 모델에서 발생하는 응력과 변위는 물을 고려하지 않은 모델에 비하여 응력크기 기준 1~2% 내외의 변동이 있었으며 가진되는 지진하중이 동일한 경우 변위는 물을 고려한 모델과 고려하지 않은 모델이 동일한 값을 보였다.
응답스펙트럼으로 해석하였을 시 각 설계기준에 정의된 지진하중에 의한 발생응력은 7.03∼12.03MPa로 나타났다. 가장 큰 응력이 나타나는 설계기준은 항만 및 어항 설계기준 으로 나타났다. 지진하중에 의한 최상단, 터빈의 최대변위는 변위는 165∼240mm로 나타났으며 도로교 설계기준에 정의된 하중을 재하하였을 때 최대변위가 가장 크게 발생하였다. 사용된 설계기준이 동일할 때 물에 의한 영향을 고려한 모델과 결과를 비교하면 변위는 동일하고 응력의 크기는 물을 고려한 모델에서 0.1∼0.2MPa 가량 크게 나타났다. 그러나 응력의 차이는 물을 고려하지 않은 모델을 기준으로 1% 내외의 차로 큰 차이는 발생하지 않았다.
시간이력해석 결과 지진 시 콘크리트기초에 8.98~9.20 MPa의 최대압축응력이 발생하였으며 최대변위는 86.79mm 로 응답스펙트럼 해석에 의한 변위값보다 작게 나타났다. 변위값은 물의 영향을 고려한 모델과 고려하지 않은 모델과 동일하게 나타났으며 응력은 물의 영향을 고려한 모델이 0.22 MPa 더 크게 나타났으나 두 값의 상대적인 차이는 물을 고려 하지 않은 모델 기준으로 2% 큰 값으로 물을 고려한 모델과 고려하지 않은 모델에서 구조물의 반응에 큰 차이를 보이지 않았다. 또한 지진 시 전 단면에서 압축영역이 나타나며 인장력은 나타나지 않았다.
응답스펙트럼해석, 시간이력해석 결과 응력은 콘크리트의 파괴강도 이내로 작용하였으며 변위 또한 도로교 설계기준 에서 제시하는 최대변위 기준을 만족하였다.
위의 사항들을 요약하면 다음과 같다
1)물에 의한 구조물의 반응의 변화는 매우 작게 나타났다 (응력변화 2% 미만, 변위는 동일)
2)설계기준에 근거한 지진해석은 응력기준, 변위기준 모두 항만 및 어항 설계기준이 가장 불리하게 나타났다.
3)설계기준에 의한 지진하중에 의한 콘크리트 기초의 응력은 항만 및 어상 설계기준에서 최대 12.03MPa로 나타났다.
4)El-centro(1940) 지진을 국내 실정에 맞추어(max acceleration, 0.11g) 가진한 결과 최대변위 86.79 mm, 최대발생응력 9.20MPa로 나타났다.
5)주어진 하중조합 하에서 응력은 응답스펙트럼해석, 시간이력해석 모두 콘크리트의 파괴강도 이내로 나타났 으며 변위 또한 도로교 설계기준에서 제시하는 최변위 기준을 만족하였다.




















