1. 서 론
1.1 연구배경
1.2 철근 콘크리트 경계보-벽체 시스템의 특징
2. 실험적 압축성능 평가
2.1 실험 계획
2.2 실험 방법
2.3 재료시험
2.4 실험 결과
3. 유한요소해석
3.1 해석모델 형상 및 재료모델
3.2 경계조건
3.3 해석결과와 실험결과의 비교 및 분석
4. 결 론
1. 서 론
1.1 연구배경
최근 공동주택 아파트에 지하주차장의 설치가 보편화되고 저층부의 생활환경 개선과 휴식 공간을 조성하고자 필로티를 배치하고 있다(Sim and Choi, 2016). 이에 따라 대부분의 공동주택 아파트는 상부벽식-하부골조 시스템으로 지어진다. 일반적으로 사용하는 전이 시스템은 전이보(transfer girder) 시스템으로, 상부벽식-하부골조 시스템은 수직부재가 불연속적으로 배치되어 강성이 큰 전이보를 통해 간접적으로 상부의 하중을 하부로 전달시킨다. 이에 따라 전이보는 매우 큰 춤을 갖게 되고, 이는 건축물의 층고 및 공사 물량을 증가시켜 경제성, 시공성에 문제를 야기시킨다. 따라서 이러한 전이보의 단점을 보완하고자 철근 콘크리트 경계보-벽체 시스템(이하 경계보-벽체 시스템)이 개발되었다(Son et al., 2021).
본 연구에서는 새로운 전이 시스템인 철근 콘크리트 경계보-벽체 시스템의 압축성능을 평가하였다. 먼저 경계보-벽체 시스템의 특징을 간단하게 나타내었고, 압축실험 및 3차원 비선형 유한요소해석을 수행하여 결과를 비교 및 분석하였다.
1.2 철근 콘크리트 경계보-벽체 시스템의 특징
경계보-벽체 시스템의 특징을 기존의 전이보 시스템과 비교하여 Table 1에 나타내었다. 경계보-벽체 시스템은 압축재가 상하부 모두 벽식 구조인 전이 시스템으로 하부벽체의 수평길이가 상부벽체보다 감소되기는 하지만 수직적으로 연속되어 배치된다. 하중이 하부벽체에 직접적으로 전달되어 전이보에 비해 크기가 작은 경계보를 적용할 수 있다. 경계보는 기존에 비구조요소인 난간벽 및 수벽을 구조요소로 활용하며, 이는 난간벽 및 수벽을 벽체와 일체화하여 설계 및 시공하는 관행이 고려된 것이다(Architectural Institute of Korea, 2018). Fig. 1에 나타낸 바와 같이 경계보-벽체 시스템은 하중의 흐름이 급변하지 않아 안정적인 하중 전달이 가능하다. 반면, 전이보 시스템은 전이보를 통해 간접적으로 하중을 전달하므로 하중 경로가 급변하고 불안정하여 국부적인 응력집중현상이 발생할 수 있다(Chung et al., 2002).
Table 1.
Comparison between the two transfer systems
2. 실험적 압축성능 평가
본 장에서는 경계보-벽체 시스템의 압축실험에 대한 실험 계획 및 방법에 대해 설명하였으며, 실험결과를 비교 및 분석하였다.
2.1 실험 계획
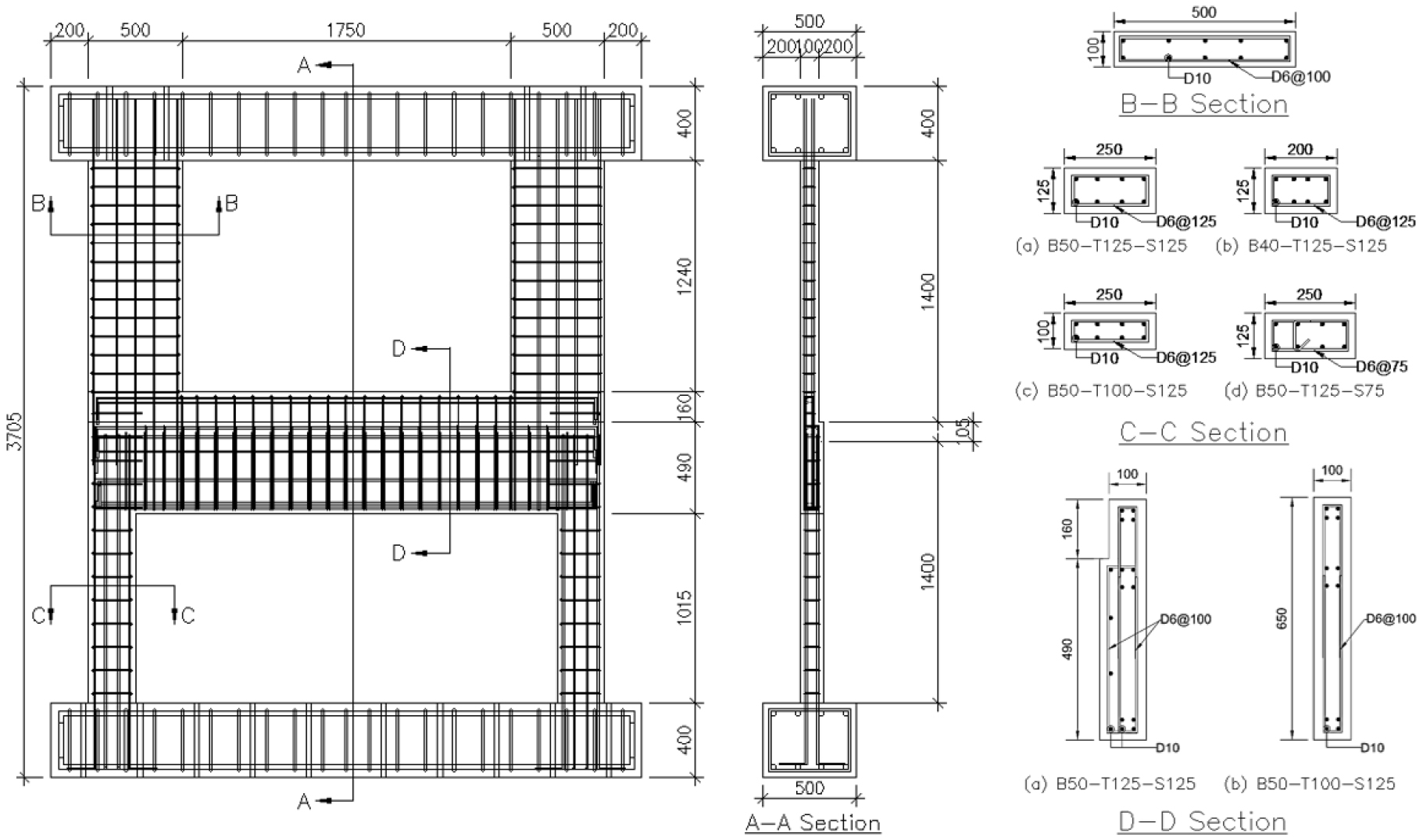
경계보-벽체 시스템의 실험체는 2층으로 계획하였다. 실험실 여건을 고려하여 1/2의 비율로 축소한 실험체를 적용하였다. 실무에서 사용하는 28층 아파트의 구조해석모델을 바탕으로 아파트 외벽 하부벽체에 작용하는 하중을 확인하였고, 이를 만족하도록 철근 배근을 계획하였다. 상부벽체의 수평길이는 아파트에 가장 큰 창호가 배치되었을 때를 고려하여 1m(축 소실험체: 500mm)로 결정하였고, 상부벽체 두께는 200mm(축소실험체: 100mm)로 계획하였다. 모든 실험체는 실험체 변수 외의 상세는 동일하다. 실험체 변수는 상하부벽체의 수평길이 상대비, 하부벽체의 두께, 하부벽체 전단보강근의 상세로 총 4개의 실험체를 제작하였다. 실험체 일람표와 실험체명 표기법을 Table 2 및 Fig. 2에 나타내었고 치수는 축소율을 적용하였다. 실험체 상세는 Fig. 3에 나타내었으며, 이때 전체 형상은 기준 실험체인 B50-T125-S125 실험체이다.
Table 2.
List of specimens
2.2 실험 방법
실험은 상부벽체의 중심선을 기준으로 하여 2점 가력으로 수행하였다. 가력은 300ton 용량의 오일잭(oil jack)을 이용하여 약 1kN/sec 속도로 하중을 가력하였다. 가력부에서 지압파괴가 발생하지 않도록 가력판(400mm×400mm×35mm)을 설치하였고, 면외 방향의 좌굴을 방지하고자 실험체 측면에 횡지지 프레임을 설치하였다. Fig. 4에 실험 세팅을 나타내었다. 실험체마다 총 6개의 LVDT(Linear Vertical Displacement Transducer)를 사용하였다. 실험체의 전체 변위를 확인하고자 오일잭에 설치하였고, 상부벽체 및 하부벽체의 수직 변위를측정하기 위해 경계보에 설치하였다. 변형률 게이지는 일정 높이에 상하부벽체의 콘크리트 및 철근에 부착하였다.
2.3 재료시험
타설한 콘크리트는 보통콘크리트이며, 공시체 압축강도 시험은 KS F 2405에 따라 수행하여 총 6개의 공시체의 평균 압축강도를 콘크리트 배합비와 함께 Table 3에 나타내었다. 철근의 경우 축소율을 고려하여 상하부벽체 및 경계보의 주근은 이형철근 D10, 전단보강근은 이형철선 D6을 사용하였으며, KS D 3504를 만족하였다. 이형철근 D10 및 이형철선 D6의 평균 항복강도는 481MPa, 317MPa로 확인하였다.
Table 3.
Concrete properties
|
Design Strength (MPa) |
W/C (%) |
S/a (%) | Unit Weight() |
Compressive Strength (MPa) | ||||
| W | C | Fine Agg. | Coarse Agg. | A.E. | ||||
| 30 | 41.8 | 45.8 | 115 | 395 | 812 | 981 | 2.77 | 31.7 |
2.4 실험 결과
2.4.1 파괴 형상
모든 실험체는 큰 균열이나 변형이 나타나지 않았으며, 하부벽체의 상부 내측에서 갑작스러운 취성적 파괴양상을 보였다. 압축력이 높아지면서 하부벽체 상부 내측에서 콘크리트가 항복하였고 동시에 주근이 좌굴되었다. 두 하부벽체는 모두 파괴되었다. Fig. 5 및 Fig. 6에 실험체의 전형적인 최종 파괴 및 세팅 해체 후 전체 파괴 형상을 각각 나타내었다.
2.4.2 최대하중
Table 4에 실험 최대하중()과 KDS 구조설계기준의 압축재 설계법에 따라 식 (1)로 구한 하부벽체의 공칭축강도()를 나타냈다. 그리고 두 값의 상대 오차를 확인하였다.
여기서, 는 콘크리트 압축강도, 는 압축면의 전 단면적, 는 철근의 전 단면적, 는 철근의 항복강도이다. 상대 오차가 크지 않아 하부벽체의 압축성능에 따라 최대하중이 결정되는 것으로 판단된다. 실험 최대하중은 하부벽체의 공칭축강도보다 낮은 값을 보였다. Table 5에 나타난 것과 같이 상하부벽체의 중심선 차이로 인한 편심이 발생하였다. 모든 실험체에 적용되는 편심 거리는 125mm 이상으로 상당히 크지만 실험 최대하중과 공칭축강도의 상대 오차는 2.3%~12.87%로 유사하게 나타났다. 특히, 면내 방향의 편심만 적용되는 B50- T100-S125 실험체는 실험 최대하중과 공칭축강도의 상대 오차가 2.3%로 거의 일치하였다. 이로부터 상부벽체로부터의 수직 하중이 하부벽체로 원활하게 전달되며, 편심으로 인한 모멘트 중 상당량을 경계보가 가져감을 알 수 있다. 상부벽체보다 하부벽체의 두께를 증가시킨 실험체들의 경우 하부벽체의 공칭축강도보다 5.24%~12.87% 낮은 최대 하중을 보였다. 이는 상하부벽체의 두께 차이로 면외 방향의 편심이 발생하며, 하부벽체에 추가되는 두께는 하중을 직접적으로 받지 못하여 단면의 기여도가 감소하는 것으로 판단된다.
Table 4.
Nominal axial strength and peak load by test
| Specimen | (kN) | (kN) |
Relative error (%) |
| B50-T125-S125 | 2,202.43 | 1,951.36 | -12.87 |
| B40-T125-S125 | 1,865.62 | 1,724.75 | -8.17 |
| B50-T100-S125 | 1,865.62 | 1,823.61 | -2.30 |
| B50-T125-S75 | 2,202.43 | 2,092.81 | -5.24 |
Table 5.
In-plane and out-of plane eccentricities
| Specimen |
In-plane eccentricity(mm) |
Out-of plane eccentricity(mm) |
| B50-T125-S125 | 125 | 12.5 |
| B40-T125-S125 | 150 | 12.5 |
| B50-T100-S125 | 125 | 0 |
| B50-T125-S75 | 125 | 12.5 |
2.4.3 하중-변위 그래프
전체 변위에 대한 하중-변위 그래프를 Fig. 7(a)에 나타내었다. Table 6에 초기강성(), 실험 최대하중 및 최대하중에서의 전체 변위()를 나타내었다. 초기강성은 최대하중의 40%인 점과 원점을 연결한 직선의 기울기로 정의하였다.
Table 6.
Initial stiffness and displacement at peak strength of each specimen
| Specimen | (kN/mm) | (kN) | (mm) |
| B50-T125-S125 | 160.9 | 1,951.36 | 11.66 |
| B40-T125-S125 | 159.0 | 1,724.75 | 11.18 |
| B50-T100-S125 | 171.6 | 1,823.61 | 11.54 |
| B50-T125-S75 | 166.1 | 2,092.81 | 12.90 |
상하부벽체의 수평길이 상대비가 40%인 B40-T125-S125 실험체는 50%인 기준 실험체보다 초기강성은 1.2%, 최대하중은 11.6% 감소하였다. 하부벽체의 수평길이가 줄어들며 감소한 공칭축강도는 15.3%로, 실험 최대하중은 공칭축강도의 감소폭보다 적게 감소하였다. 상하부벽체 수평길이의 상대비가 40%일 때 50%보다 단면의 기여도가 높은 것을 알 수 있다.
하부벽체의 두께가 감소한 B50-T100-S125 실험체는 기준 실험체보다 초기강성은 6.6% 증가하였지만, 최대하중은 6.5% 감소하였다. B50-T100-S125 실험체의 경우 상하부벽체의 두께가 동일하여 면외 방향의 편심으로 인한 휘어짐이 발생하지 않아 초기강성이 증가한 것으로 판단된다. 또한, 실험 최대하중이 하부벽체의 공칭축강도와 거의 일치하므로 단면의 기여도가 가장 높은 것으로 알 수 있다. 하부벽체의 전단보강근 간격을 줄이고 크로스 타이를 배근한 B50-T125-S75 실험체는 기준 실험체보다 초기강성은 3.2%, 최대하중은 7.2% 증가하였다. 전단보강이 잘 이뤄질 경우 압축성능이 증가하는 것으로 알 수 있다. Fig. 8에 나타낸 하부벽체 주근의 변형률 그래프를 통해 전단보강근의 내부 콘크리트에 대한 구속효과가 국부적인 응력집중을 줄이고 하중을 고르게 부담시키는 것으로 판단된다.
하부벽체의 수직 변위를 이용하여 하중-변위 그래프를 Fig. 7(b)에 나타냈다. 이때 두 하부벽체의 변위는 유사하였고 평균하여 사용하였다. 실험은 하부벽체에서 파괴되어 전체 변위에 대한 하중-변위 그래프와 경향성이 유사하였다.
2.4.4 하중 전달경로
하부벽체는 상부벽체보다 줄어든 수평길이를 갖기 때문에 축하중 가력 시 상부벽체에서 하부벽체로 갈수록 하중이 모이게 된다. 상부벽체, 상하부벽체의 사이, 하부벽체에서 측정한 콘크리트 변형률을 바탕으로 각 측정 위치에서 작용하는 단면의 변형률 분포 및 하중 전달경로를 Fig. 9에 나타내었다. 동일한 하중에서 비교하기 위해 하중 1,600kN일 때의 변형률 분포를 사용하였으며, 변형률 분포를 바탕으로 하중 전달경로를 대략적으로 나타내었다. 정확한 하중 분배 위치를 알 수 없으므로 측정 위치를 기준으로 표시하였다. 이를 통해 하부벽체의 단면적이 감소할 경우 하중 전달경로의 유효폭이 좁아질 것으로 판단된다. 또한, 전단보강이 더 잘 이루어질수록 응력집중이 감소하여 넓은 영역으로 하중이 분배되는 것으로 보인다.
3. 유한요소해석
본 장에서는 3차원 비선형 유한요소해석을 수행하였다. 이를 통해 도출한 하중-변위 그래프, 응력분포 등을 실험결과와 비교 및 분석하였다.
3.1 해석모델 형상 및 재료모델
실험을 바탕으로 3차원 비선형 유한요소해석을 수행하였다. 상용 프로그램인 ABAQUS/CAE(2018)를 이용하여 정적해석(static general)을 하였고, 해석모델의 형상을 Fig. 10에 콘크리트와 철근으로 나타내었다. 유한요소해석 모델에 사용된 요소의 경우 콘크리트는 3차원 육면체 요소(C3D20), 그리고 철근은 선형 요소(T3D3)를 사용하였다. 선형 요소는 삽입 옵션(embedded region)을 통해 콘크리트 영역에 일체화시켰다. 콘크리트의 압축 거동에 대한 모델은 콘크리트 손상소성모델(concrete damaged plasticity model)을 사용하였다. 모델의 변수는 팽창각 35도, 편심률 0.1, 응력비 1.16, 는 0.667로 적용하였고, 점성(viscosity)은 고려하지 않았다. 콘크리트의 압축에 대한 재료물성치는 일반적으로 사용하는 Hognestad 모델에 재료시험값을 적용하여 사용하였다. 콘크리트의 재료물성치는 공시체의 압축강도시험으로 측정된 탄성계수 22,574MPa, 압축강도 31.7MPa를 이용하였다. 해석의 수렴을 위해 변형률 0.0038 이후에도 응력이 점차 감소하도록 하였다. 이러한 콘크리트의 압축에 대한 재료모델은 재료시험을 통해 얻은 응력-변형를 그래프와 함께 Fig. 11에 나타내었다. 콘크리트의 인장 거동에 대한 모델은 이선형 인장 모델(bi-linear tensile model)을 적용하였다. 해석의 수렴을 위해 변형률 0.002까지 응력을 천천히 감소시켰고, 이를 고려하여 콘크리트의 인장강도를 저감하였다. 포아송비는 0.167을 적용하였다.
철근은 완전 탄소성 모델(elastic-perfectly plastic model)을 사용하여 항복강도에 도달 이후 변형률이 무한대로 증가하도록 하였다. 항복강도는 주철근 481MPa, 전단보강근 317MPa이며 탄성계수는 200GPa, 포아송비는 0.3을 적용하였다.
3.2 경계조건
유한요소 해석모델의 경계조건은 Fig. 12와 같다. 하중은 실험과 동일하게 상부벽체의 중심선을 기준으로 변위제어하였다. 가력면의 절점들을 하나의 절점과 연결하고자 MPC(Multi- Point Constraints) 링크를 적용하였다. 이는 제어점(control point)과 구속된 절점(slave nodes)의 거리를 유지시키며 변위가 공유되며, 회전을 고려할 수 있다. 제어점의 변위는 y축으로 점진적으로 증가시켰으며, z축 변위는 고정하였다. 실험체 하부면은 각 축에 대한 변위를 고정하였다. 하중은 제어점의 반력으로 측정하였다. 해석의 변위 측정 위치는 제어점 및 LVDT 측정 위치로 하였다.
3.3 해석결과와 실험결과의 비교 및 분석
3.3.1 하중-변위 그래프
오일잭에서 측정한 전체 변위는 12mm 정도에서 최대하중에 도달하였으나, 해석에서는 7mm 정도에서 최대하중에 도달하였다. 전체 변위를 검증하고자 실험 시 상하부벽체의 변위를 이용하여 전체 변위를 도출하였고 약 7mm로 나타났다. 장치의 5mm 정도의 처짐이 반영된 것으로 판단된다. 따라서 하부벽체의 변위를 이용하여 해석결과와 실험결과를 비교하였다. 실험과 해석으로 도출한 하부벽체의 하중-변위 그래프를 실험체별로 Fig. 13에 나타내었다. 초기강성은 실험보다 해석에서 높지만, 초기강성 이후의 강성은 거의 일치하였다. 또한, 해석의 경향성이 실험결과와 잘 일치하였다. 이를 통해 해석모델이 실험체의 거동을 잘 예측하는 것으로 알 수 있다.
3.3.2 응력분포 및 파괴양상
von Mises 응력분포를 통해 파괴양상을 살펴보고자 Fig. 14에 최대하중에서의 콘크리트 응력분포를 나타내었다. 변형에 대한 스케일 팩터(scale factor)를 30으로 증가시켰다. 휘어져 압축되는 하부벽체 상부 및 벽체 경계에서 응력이 집중되었다. 실험에서도 해당 부분에서 파괴가 발생한 것을 알 수 있다.
하중에 따른 하부벽체의 콘크리트 응력분포를 Fig. 15에 나타내었다. 그림 하부에 유한요소해석 상의 기둥 축력(kN)과 공칭강도 대비 축력비를 괄호 안에 나타내었다. 하중이 증가함에 따라 하부벽체의 상부 내측에 응력이 점차 집중되었다. 최대하중에 도달 시 하부벽체의 상부 중앙과 내측 철근이 압축에 저항하였다. 하부벽체의 상부 중앙 콘크리트가 항복하면서 하중이 감소하였다. 다만, 하부벽체의 전단보강근의 간격을 줄이고 크로스 타이를 배근한 B50-T125-S75 실험체는 하부벽체의 상부 중앙 콘크리트의 대부분이 항복함에도 외측 콘크리트가 압축력에 추가로 저항하는 것으로 나타났다.
3.3.3 하중 전달경로
하중 전달경로를 확인하고자 하중재하방향 콘크리트 응력(S22)분포를 Fig. 16에 나타내었다. 응력분포는 실험에서 하중 전달경로를 평가한 하중에서 도출하였다. 상부벽체보다 하부벽체의 두께가 증가하는 실험체는 면외 방향의 모멘트로 후면에서 응력이 집중되었다. 이에 따라 정면에서 하중 분배 위치가 높아졌으며, 상부 벽체의 대략 1/2 높이에서 하중이 사선으로 하부벽체에 전달되었다. 후면에 경우 응력이 집중되어 하중 분배 위치가 경계보 상부에 위치하였다. 반면, 상하부벽체의 두께가 동일한 B50-T100-S125 실험체는 정면과 후면이 유사한 응력분포를 나타냈고, 하중 분배 위치는 상부벽체 하부에 위치하였다. 변수에 따라 살펴보면, 하부벽체의 수평길이가 감소할 경우 하중 전달경로의 유효폭이 감소하였고 하중 분배 위치가 올라갔다. 하부벽체의 두께가 감소할 경우 하중 전달경로의 유효폭의 감소는 실험과 다르게 해석에서는 뚜렷하게 나타나지 않았다. 전단보강근 상세는 하중 전달경로에 영향을 미치지 않는 것으로 판단된다.
4. 결 론
본 논문의 연구대상인 철근 콘크리트 경계보-벽체 시스템은 큰 춤의 전이보를 요구하지 않을 뿐 아니라 일반적으로 비구조요소로 취급되는 수벽 및 날개벽을 구조요소인 경계보로 활용하는 시스템이다. 또한 이 시스템에서는 상하부벽체가 수직으로 연속 배치되므로 기존의 전이보 시스템보다 안정적인 하중 전달이 가능하다. 이와 같은 특성을 지닌 철근 콘크리트 경계보-벽체 시스템의 압축성능을 평가하고자 압축실험 및 3차원 비선형 유한요소해석을 수행하여 결과를 분석하였다. 본 연구를 통해 도출한 주요 결론은 다음과 같다.
1)모든 실험체가 압축력에 대하여 최대하중 이후 갑작스럽게 취성적으로 파괴되었다. 하부벽체 상부 내측에서 콘크리트가 항복하였고 하부벽체 내부 주근이 좌굴되며 급격한 파괴가 발생하였다.
2)상하부벽체의 중심선 차이로 인한 편심 거리는 125mm 이상으로 상당히 크지만, 실험 최대하중과 편심을 고려하지 않은 공칭축강도의 상대 오차는 2.3%~12.87%로 나타났다. 이로부터 상부벽체로부터의 수직 하중이 하부벽체로 원활하게 전달되며, 편심으로 인한 모멘트 중 상당량을 경계보가 가져감을 알 수 있다.
3)상하부벽체 수평길이의 상대비가 40%일 경우 50%일 때보다 공칭축강도는 15.3% 감소하였지만 실험 최대하중은 11.6% 감소하였다. 상하부벽체 수평길이의 상대비가 40%일 때 50%보다 단면의 기여도가 증가하는 것으로 판단된다.
4)상하부벽체의 두께가 동일할 경우 면외 방향의 편심으로 인한 휘어짐이 발생하지 않아 초기강성이 증가하고 공칭축강도와 실험 최대하중의 상대 오차는 2.3%로 거의 일치하였다. 반면, 하부벽체의 두께가 상부벽체보다 증가할 경우 하부벽체의 공칭축강도보다 5.24%~12.87% 낮은 실험 최대하중을 보였다. 면외 방향의 편심이 발생하며 하부벽체의 추가되는 두께의 경우 하중을 직접적으로 받지 못하여 단면의 기여도가 감소하는 것으로 판단된다.
5)하부벽체의 전단보강근 간격을 75mm로 줄이고 크로스 타이를 배근할 경우 하부벽체의 전단보강근 간격이 125mm이며 크로스 타이를 배근하지 않을 때보다 초기강성은 3.2%, 최대하중은 7.2% 증가하였다. 전단보강근의 구속효과가 국부적인 응력집중을 줄이고 하중을 고르게 부담시키는 것으로 판단된다.
6)하부벽체의 수평길이가 감소하면 하중 전달경로의 유효폭은 감소하였고 하중 분배 위치가 올라갔다. 전단보강근의 상세는 하중 전달경로에 영향을 미치지 않는 것으로 판단된다.


















