1. 서 론
폭발하중과 같이 고변형률 속도 조건에서 철근과 콘크리트는 재료의 성질이 변형률 속도에 따라 변하면서 구조물은 유사 정 하중 조건에서의 거동과는 다른 거동을 보이게 된다. 콘크리트는 고변형률 속도에서는 상대적으로 짧은 시간으로 인해 팽창이 억제되면서 측면 구속효과가 발생하고(Bischoff and Perry, 1991;Li and Meng, 2003), 균열이 저항이 높지만 짧은 경로로 진행하는 식으로 균열 패턴이 변화하면서 콘크리트 강도가 증가하게 된다(Chen et al., 2013). 철근 또한 콘크 리트와 마찬가지로 고변형률 속도에서 강도 증가 현상이 나타 나며 재료의 동적 특성을 정확히 반영하기 위해서 폭발해석 시 변형률 속도의 영향이 고려되어야 한다(Kwak and Gang, 2017). 나아가 폭발하중이 철근콘크리트 구조물에 작용하게 되면, 벽체 및 슬래브 부재는 면외(out-of plane) 방향에서 하중이 작용하게 되므로 2축 거동을 나타내게 되며, 직접 전단 거동이나 휨 거동을 보이며 파괴에 이르게 된다.
따라서, 면외 하중인 폭발하중을 받는 콘크리트 슬래브의 거동을 확인하기 위한 다양한 연구들이 최근에 활발히 진행 되고 있다. 먼저, 폭발하중을 유사하게 모사할 수 있는 장비를 이용해 일반 콘크리트와 고강도 콘크리트에 대해 폭발실험을 진행하여 시간에 따른 변위 변화를 확인하였고, 등가의 단자 유도계(SDOF)로 치환하여 해석과 실험결과를 비교하였다 (Thiagarajan et al., 2015). Zhao와 Chen(2013)는 이격 거리(stand-off distance)나 TNT 화약 무게(charge weight) 에 따라 파괴형상과 거동을 확인하는 연구를 진행하였으며, Wang 등(2012)은 근접폭발하중(close-in loading)하에서의 실험을 통해 철근콘크리트 슬래브의 동적 거동을 기반으로 한 거시구조물의 손상 정도를 예측하는 환산 식을 제시한 바 있다. Ha 등(2011)은 ANFO 폭발 화약을 이용하여 슬래브의 폭발 실험을 통해 철근콘크리트의 폭발저항 성능을 확인하는 등 다양한 폭발 실험연구가 이루어지고 있다.
그러나 폭발실험은 높은 비용문제와 안전상의 문제로 실험이 제한적으로 이루어지고 있으므로 실험연구와 더불어 다양한 해석적인 접근을 통해 실험의 한계를 극복하고 있다. 대부분의 폭발해석 연구는 상용프로그램 중의 하나인 LS-DYNA(LSTC, 2007)를 통해 이루어지고 있다. 폭발해석에 주로 사용되는 콘크리트 소성 모델은 변형률 경화(strain-hardening) 거동 을 실제 거동과 유사하게 표현하는 반면, 최대 강도 이후의 변형률 연화 거동을 표현하는데 있어서 콘크리트의 에너지 흡수 능력을 과대 해석하는 경향이 있다(Hao, 2015). 이 밖에도 등가의 단자유도계에 관련된 기법 개발(Biggs, 1964)에 대한 연구가 활발히 진행되고 실제 폭발해석에 많이 사용되고 있음 에도 불구하고, 해석 시 너무 많은 가정이 필요하고 균열로 인한 비선형 거동을 정확히 표현하는데 한계를 가지고 있다.
철근콘크리트 구조물에서 균열이 발생하면 철근과 콘크리트 사이의 슬립이 발생하게 된다. 이는 콘크리트의 비선형성을 증가시키는 부착슬립이 진행되면서 추가적으로 강체 회전 (rigid-body rotation)을 동반하게 된다. 기존의 Mindlin plate 기반 모델은 철근과 그 주변의 콘크리트 사이를 완전부 착으로 가정하며, 부착슬립으로 인해 발생하는 강체 회전을 표현하는데 한계를 가지고 있다.
따라서 부착슬립 거동을 모사함에 나타나는 어려움을 보완 하고 소성 모델이 갖는 한계점을 극복하기 위해 본 연구에서는 콘크리트 이등방성 구성모델(orthotropic constitutive model) 을 적용한 효율적인 철근콘크리트 슬래브의 폭발해석 모델을 제시하였으며 동적해석을 위해 구성모델에 변형률 속도의 영향을 고려하였다. 나아가 수정휨강성을 이용한 부착슬립 모델을 적용하여 부착슬립을 고려하였다. 마지막으로 제안한 모델의 타당성은 시간-변위 곡선으로 실험 데이터와 비교에 의해 검증하였고, 해석 시 균열로 인한 부착슬립의 영향 고려의 중요성을 확인하였다.
2. 본 론
이 장에서는 폭발하중을 받는 철근콘크리트 부재의 비선형 거동을 예측하기 위해 동적 해석모델을 제안하고 폭발 수치 해석을 통해 제안된 모델의 타당성 및 효율성을 검증하고자 한다.
2.1 재료성질
2.1.1 콘크리트
2축 응력 상태에서 콘크리트는 전체 좌표계(global coordinate) 와 주 좌표계(principal coordinate)가 일치하지 않으며 Fig. 1과 같이 이 두 좌표계는 θ만큼의 각을 이루고 있다. 먼저, 전체 좌표계에서 변형률과 주 좌표계의 변형률 사이의 관계식은 식 (1)과 같다.
여기서, 주 좌표계에서의 변형률은 이고, 전체 좌표계에서의 변형률은 을 나타낸다. T 는 변환 행렬(transformation matrix)이고, 전체 좌표계와 주 좌표계가 이루는 각도는 이다.
일반적으로 최대 주인장 응력이 인장강도보다 커지면 균열이 발생하게 되며, 균열의 방향은 주인장 응력 방향의 수직이 된다 (Fig. 1). 주 좌표계는 해석이 진행되는 동안 계속해서 업데이 트되며 주 좌표계를 따라 균열이 발생하는 방향이 달라지는 회전 면내 균열(rotating smeared crack)을 적용하였고 이때 균열은 강성의 감소로 나타낸다. 주응력의 방향과 주변형률의 방향이 같다고 가정하고 주방향에서 이등방성 구성 관계식 (orthotropic constitutive relation)은 식 (2)와 같이 정의 할 수 있다(Darwin and Pecknold, 1974).
여기서, E1과 E2는 주방향에서의 탄성계수를 의미하고, ν는 포아송비이다. D12는 강성 행렬을 의미하고, 전단계수G 는 로 나타낼 수 있다.
한쪽 주응력 방향에서 균열이 발생하면 주응력과 탄성계수와 포아송비는 0이 되고, 전단계수 또한 감소한다. 주 좌표계에서 구해진 응력과 강성 행렬은 변환 행렬을 이용하여 전체 좌표계 에서의 응력과 강성 행렬을 구할 수 있고, 이에 대한 자세한 내용은 Darwin과 Pecknold(1974) 그리고 He 등(2006)에서 찾아볼 수 있다.
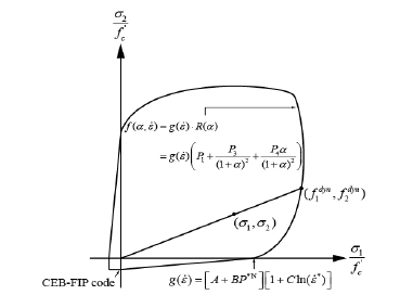
콘크리트에 2축 응력이 작용하면 콘크리트의 강도는 응력의 조합에 따라 달라지며 이를 반영하기 위해서는 응력 비에 따른 2축 강도 곡선이 정의되어야 한다. 먼저, 콘크리트 2축 압축 영역은 Gang과 Kwak(2017)이 제안한 2축 압축강도 모델을 적용하였다. 이 모델은 2축 측방향 구속 압력의 영향과 변형률 속도(strain rate)의 영향을 고려하고자 수정된 Yan과 Lin (2007) 모델과 HJC(Holmquist et al., 1993) 모델로 구성 되어 있다. 먼저, 수정된 Yan과 Lin 모델식은 식 (3)과 같다.
여기서, 는 응력비이고, P1, P3 그리고 P4는 fc=10.7MPa인 콘크리트에 대한 동적 2축 압축실험을 통해 정해진 상수로 각각-0.446, 1.446 그리고 6.42의 값을 갖는다.
변형률 속도의 영향은 1축 동적 압축강도 정의를 통해 고려 되었고, 동적 압축강도는 CEB-FIP model code(1990)와 HJC 모델과 같은 동적 증가 계수(dynamic increase factor) 모델들을 통해 구할 수 있으며, 이 중 HJC 모델은 실험에 따른 재료상수를 결정하여 1축 동적 압축강도를 정확하게 구할 수 있으므로 본 연구에서는 HJC 모델()을 적용하여 2축 압 축강도 곡선()과 곱의 형태를 취해 동적 2축 압축강도를 나타내었다(Fig. 2).
2축 인장을 받는 콘크리트의 거동은 응력비와 무관하게 1축 인장 거동과 유사하게 나타남을 실험(Hussein and Marzouk, 2000;Kupfer and Gerstle, 1978)을 통해 확인하였다. 또한, 2축 인장강도는 1축 인장강도와 같다고 가정하였다. 1축 동적 인장강도는 CEB-FIP model code를 수정한 모델(Marval and Crawford, 1998)을 사용하였다. 압축-인장 영역은 1축 동적 압축강도와 1축 동적 인장강도를 선형으로 연결하여 구성 하였다. 최종적으로 2축 강도 곡선은 Fig. 2와 같고 이를 통해 응력비에 따른 주 방향에서의 콘크리트의 강도 () 가 새롭게 정의된다.
2축 응력 상태를 반영하여 주방향에서 결정된 콘크리트 강도를 갖는 1축 응력-변형률 관계식이 그림과 같이 압축과 인장 영역에서 정의된다. 압축은 Scott 등(1982)이 제시한 관계식을 채택하였으며 인장 영역은 선형으로 구성된 단순한 식을 적용하였다. 1축 응력-변형률 관계식을 통해서 주변형률에 따른 주응력과 강성이 얻어지고 이를 통해 식 (3)의 이등방성 구성 모델이 결정된다.
2.1.2 철근
철근콘크리트 슬래브를 해석하고자 철근 모델은 항복강도 까지 선형 탄성으로 증가하고, 항복강도 이후에는 변형률 경화를 나타내는 모델을 사용하였다. 변형률 속도에 따른 항복강도 증가를 반영하고자 Malvar(1998)가 제안한 모델을 적용하였 으며, 식 (4)는 다음과 같다.
여기서, fy는 정적 인장강도(MPa)이고, 는 철근의 변형률 속도이다. 이 식은 변형률 속도가 10-4s-1 ≤≤225s-1의 범 위에 있고 항복강도가 290MPa≤ fy ≤710MPa인 범위일 때 유효하다.
2.2 부착슬립 모델
균열이 발생하면 콘크리트와 철근 사이의 슬립이 발생하게 된다. 일반적으로 부착 슬립은 보의 중앙부와 보-기둥 연결부와 같은 응력이 집중되는 곳에서 발생하며, 철근이 항복하면 부착 슬립의 영향은 더욱 커지게 된다. 본 연구에서는 철근콘크리트 슬래브에서 이러한 부착슬립의 영향을 휨강성 변화를 통해 고려 하였다. 이전 연구에서 개발한 1축 거동을 하는 보에서의 부착 슬립의 영향(Lee and Kwak, 2018)을 고려하는 알고리즘을 사용하여 일방향(one-way) 슬래브에서 발생하는 부착슬립 영향을 고려하였다. 일방향 슬래브에서 하중이 작용하게 되면 소성힌지 영역에 균열이 집중되고 균열 부근에서 강체 회전이 동반되며 이로 인해 모멘트 재분배가 발생한다. 이때, 철근과 콘크리트의 부착 슬립은 휨에 의해 발생한 균열 폭의 반 (δ = w/2)이라고 가정하여 계산할 수 있다. 부착 슬립으로 인 한 강체 회전은 로 구할 수 있으며 여기서 c와 d는 중립축과 유효깊이를 각각 의미한다(Fig. 3).
Fig. 4와 같이 부착 슬립에 대한 강성을 변화시키고자 회전 강성 Kθ 을 중앙부에 고려한 캔틸레버 보와 소성힌지 영역에 등가 휨강성 EIeq 을 고려한 캔틸레버 보를 free body diagram 으로 나타내었다. 두 캔틸레버 보에 같은 힘이 각각 가해졌을 때 발생한 최대변위가 같다(∆1 = ∆2)는 적합 조건(compatibility condition)을 이용하여 다음과 같은 식 (5)를 구할 수 있다.
여기서, EI 는 기존의 휨강성이고 L 은 캔틸레버 보의 길이이며 Kθ는 회전 강성으로 항복 모멘트와 강체 회전의 비()로 나타낸다. β는 비례상수로 하중 형태와 경계 조건 에 따라 값이 달라진다. 등가 휨강성 식의 유도 과정에 대한 자 세한 설명은 Lee와 Kwak(2018)에 언급되어 있다.
양방향(two-way) 슬래브의 경우에는 균열이 주응력 방향 으로 발생하고, 이때 주응력은 철근 방향과 평행하게 발생하지 않는다. 등가 휨강성은 1축 거동을 하는 부재를 기반으로 제안 되었기 때문에 균열이 철근 방향에서 발생하는 보 부재 실험을 기반으로 제안된 균열 폭 모델을 사용하였다. 따라서, 이를 2축 거동을 하는 부재에 적용하기 위해 본 연구에서는 2축 균열 모델로서 Vecchio와 Collins(1986) 모델을 적용하였다. Vecchio and Collins 모델은 주방향에서의 평균 균열 간격 Sθ을 계산하여 이를 주변형률과 곱하여 주방향에서의 균열 폭 ()을 얻을 수 있다. 평균 균열 간격을 구하는 자세한 설명은 Vecchio와 Collins(1986)에서 찾아볼 수 있다. 주방 향에서의 균열 폭이 구해지면 전체 좌표계에서의 균열 폭을 와 에 의해 구할 수 있고, 식 (5)를 통해 각 축에서의 등가 휨강성인 EIeq,x 와 EIeq,y을 구할 수 있다. 구해진 등가 휨강성으로 강성행렬을 새롭게 구성하여 2축 거동 에서 부착 슬립의 영향을 해석에 반영하였다.
2.3 수치해석 과정
본 연구에서는 포트란 언어를 사용한 Mindlin plate 기반의 폭발하중을 받는 RC 슬라브 부재의 비선형 해석모델을 개발하 였다. 8-node 요소를 사용하였고, 각 노드는 z방향의 변위와 x방향과 y방향의 회전을 포함한 총 3개의 자유도를 가지고 있 다. 요소에서 휨강성을 구하기 위해 3×3 가우스 적분을 사용 하였고, 전단강성은 전단 잠김(shear locking) 현상을 피하고 자 감소 적분인 2×2 가우스 적분을 사용하였다. 단면의 층상화 모델을 사용하여 깊이에 따른 소성화 정도를 확인할 수 있도록 하였고, 전단 변형에 대해서도 고려하였다. 동적 해석기법으로 는 평균 가속도 기법을 사용한 비반복 뉴마크(Non-iterative Newmark method)를 적용하여 해석의 속도와 정확도를 확보하였다. 이에 대한 자세한 과정은 Chopra(1995)에 언급 되어 있다. 수렴 해석(convergence test)을 통해 최소 요소 개수를 확인하여 해석의 효율성을 높였다. 각 스텝마다 등가 휨강성을 구하여 부착 슬립의 영향을 고려하였다.
2.4 폭발수치해석을 통한 해석모델 검증
제안한 모델을 검증하기 위해 시간에 따른 중앙의 최대 변위 그래프를 이용하여 해석결과와 실험결과의 상관관계 연구를 진행 하였다. Thiagarajan과 Johnson(2014)이 실험한 RSCR1 과 RSCR3 시편과 Jacques(2011)가 실험한 CS3 슬래브 시 편이 모델 검증에 사용되었다. 각 시편의 재료 특성은 Table 1에 요약되어 있다. 부착 슬립 모델을 적용하기 위해 소성힌지 길이 식은 부재의 유효길이, 철근의 항복강도와 철근 지름으로 이루어진 Paulay와 Priestley(1992)를 적용하였으며 Lp = 0.08L + 0.022dbfy이다.
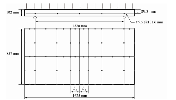
먼저, Fig. 5와 같이 1,625×857×102mm의 차원을 갖는 RSCR1과 RSCR3은 그림과 같이 16개의 요소로 모델링되었 으며, 등가 휨강성을 적용하기 위해 부착 슬립이 집중적으로 발생하는 슬래브 중앙에 요소는 소성힌지 길이인 139.76mm 만큼을 갖도록 설정하였다.
슬래브는 길이 방향으로 지지되어 있으며, 지지대 위치에 따라 시편의 유효길이는 1,320mm를 적용하여 해석을 진행하 였다. 두 시편 모두 인장 측에서 철근비 0.92%를 가지며 서로 다른 크기의 하중이 적용된다. 하중은 실험에서 측정한 시간에 따른 평균 반사 압력 그래프를 선형으로 간소화하여 수치해석에 적용하였다(Fig. 6). RSCR1과 RSCR3의 최대 압력은 각각 366kPa와 304.7kPa를 갖는다. 슬래브는 균일한 압력을 전달 하도록 설계된 Blast load Simulator(BLS)를 사용하여 실험 되었고 실험 설계에 대한 자세한 내용은 다음에서 확인할 수 있다(Thiagarajan and Johnson, 2014). 이 시편들은 하중 의 크기는 철근의 항복을 유발할 정도로 크며 중앙에 소성힌지 영역이 집중되면서 처짐이 크게 발생하므로 수치해석에서 완 전부착으로 해석한 결과와 부착 슬립 모델을 적용한 결과의 차 이를 확인하였다.
먼저, Fig. 7에서 RSCR1 시편에 대해 요소의 개수가 8(4×2), 12(6×2), 16(8×2)개 일 때 해석 결과의 수렴성을 확인하였고, 8개 요소인 경우를 제외하고 12개와 16개의 요소 에서는 수렴된 해석 결과를 보였으며 본 연구에서는 해석의 안 정성을 위해 16개의 요소를 사용하여 수치해석을 진행하였다. Fig. 8에서 RSCR1과 RSCR3 시편에 대해 부착 슬립 영향의 고려 유무에 따른 해석결과를 비교하였다. 시간-변위 그래프 에서 두 시편 모두 부착 슬립의 영향을 고려한 해석결과가 실 험결과와 매우 유사함을 보였으며 콘크리트와 철근을 완전부 착의 경우 실험결과를 보수적으로 해석함을 확인하였다. 그러나 최대변위에 도달할 때까지 실험과 유사하지만, 최대변위 도달 이후에는 해석결과가 실험결과보다 빠르게 감소하는데 재료의 응력-변형률 관계식에서 unloading path를 고려하지 않아 이러한 차이가 발생하게 된다.
다음은 Jacques(2011)가 실험한 CS3과 CS5 시편은 경계 조건에 따라 각각 one-way와 two-way 거동을 하는 시편이다. CS3는 한쪽에만 단순 지지가 된 슬래브이고, CS5는 양방향이 고정되어 있다. Fig. 9는 CS3의 형상을 나타내며 지지대가 있는 방향으로 유효길이는 2,232mm를 갖고, CS5의 경우 양 방향 모두 2,232mm의 유효길이를 갖는다. 시편은 36개의 요소로 모델링되었으며, 각 방향의 중앙부에 위치한 요소는 소 성힌지 길이만큼 갖도록 설정하였다. 하중은 면외(out-ofplane) 방향에서 시편에 균일하게 작용된다고 가정하였고, 앞선 시편과 마찬가지로 평균 반사 압력 그래프를 선형으로 간소화하여 해석에 적용하였다. 두 시편에 작용한 최대 반사 압력의 크기는 CS3의 경우 28.2kPa이고, CS5는 26.7kPa 이며 작용시간은 각각 14.7s와 15.4s로 두 시편에 유사한 하중이 작용하였다.
경계 조건에 따라 완전 부착 모델과 부착 슬립 모델의 해석 결과는 Fig. 10과 같다. 경계 조건에 상관없이 균열이 발생하는 경우 철근과 콘크리트 사이에 슬립이 발생하며 그 결과 부착 슬립의 고려한 모델이 실험결과와 유사한 결과를 보였다. 그러나 두 시편의 경우 최대변위가 작아 부착 슬립의 영향에 따른 차 이는 크게 발생하지 않았다. 또한, 두 시편의 물성의 차이를 보임에도 불구하고 2축 거동을 하는 경우 부재의 저항성이 커지 면서 최대변위가 작아지고 그에 따라 부착 슬립의 영향이 작아 짐을 알 수 있다.
제안한 모델이 부착 슬립으로 인한 강체 회전을 고려하기 때문에 슬래브 부재의 경간에 따른 곡률의 분포를 비교하였다. Fig. 11은 완전부착 모델과 제안한 모델에 의한 곡률 분포를 나타낸다. 완전부착 모델은 철근의 항복 이후 소성힌지 영역 에서 곡률의 급격한 증가를 묘사하는데 한계를 갖고 있다. 또한, RSCR1의 곡률 분포와 CS3의 곡률 분포를 비교를 통해 완전 부착 모델과 제안한 모델의 곡률 분포 차이는 전체 변위가 증가 함에 따라 커지게 됨을 확인하였다.
3. 결 론
본 연구에서는 폭발하중을 받는 철근콘크리트 슬래브의 비 선형 동적 거동을 묘사하는 개선된 수치 모델을 제안하였다. 이등방성 모델은 콘크리트 변형 연화 거동을 반영하고 슬래브 부재의 이축 거동을 설명하는데 사용되었다. 부착 슬립은 주방 향에 따른 균열 효과를 고려하여 제안되었다. 수치해석과 실험 결과 사이의 상관관계 연구를 통해 철근콘크리트 슬래브에서 해석 결과의 정확도 향상을 위해 부착 슬립 효과 고려의 중요 성을 보여주었다. 또한, 경계 조건과 변위에 따라 부착 슬립의 영향이 다르게 나타남을 확인하였다. 결론적으로 제안된 모델은 폭발하중을 받는 철근콘크리트 슬래브 해석에 효과적으로 사용 될 수 있음을 확인하였다.














